A Delicate Apartment with an Office for a Young Lady in Yekaterinburg: Photos, Video, and Interior Estimate

A Delicate Apartment with an Office for a Young Lady: Photos, Video, and Interior Estimate

This interior was commissioned by longstanding clients of ours. This time, they asked us to design an apartment for their daughter. We created a delicate interior that will help the future homeowner relax comfortably and work productively.

We handled both the design and the renovation of this space. We prepared an estimate and locked in the cost during the design phase – the price did not change throughout the construction process.

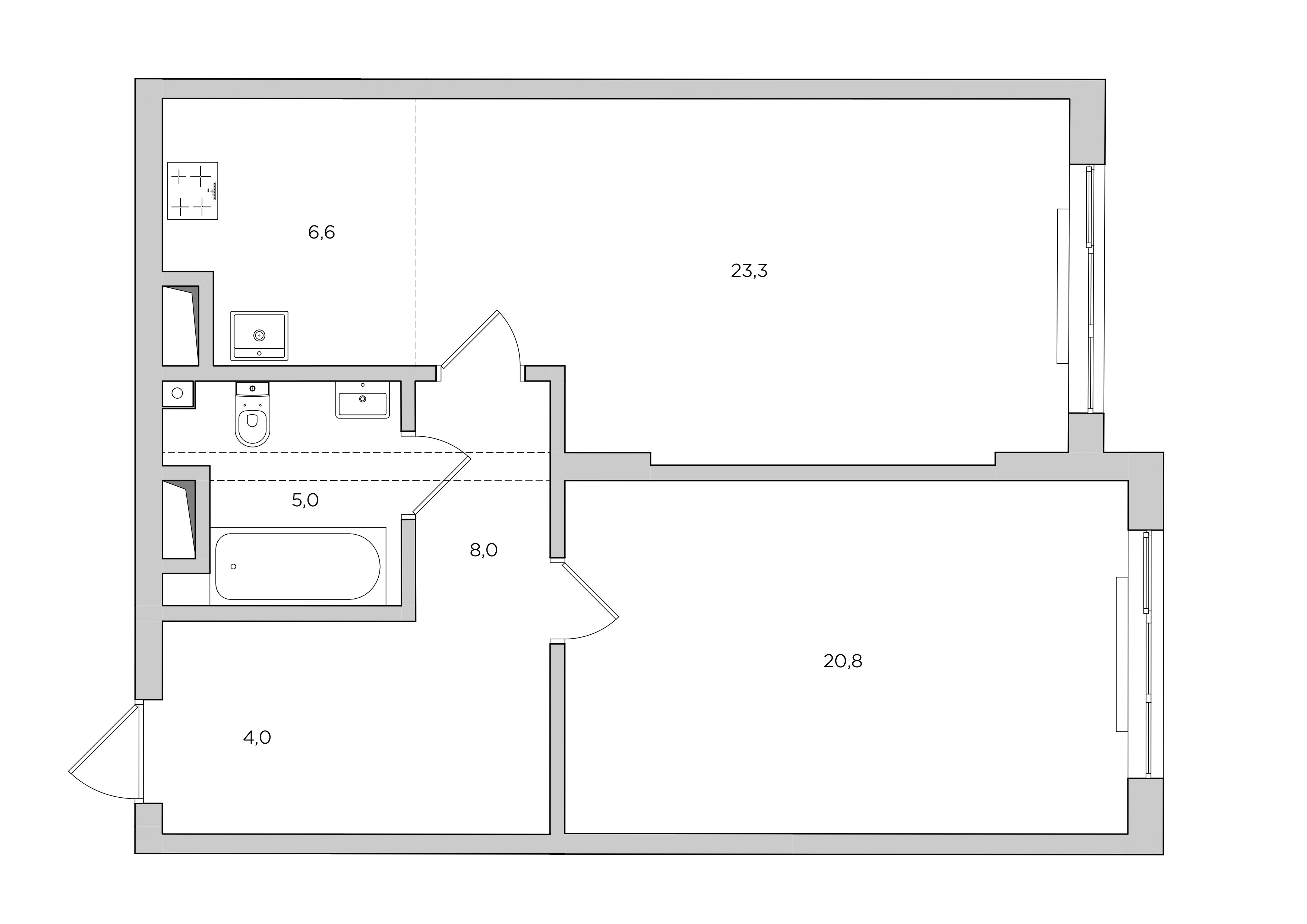
Size 66 m2
Type An one-bedroom apartment
Years 2024–2026
Features Load‑bearing beam, spacious kitchen‑living room with a narrow alcove, and load‑bearing pillars
Before
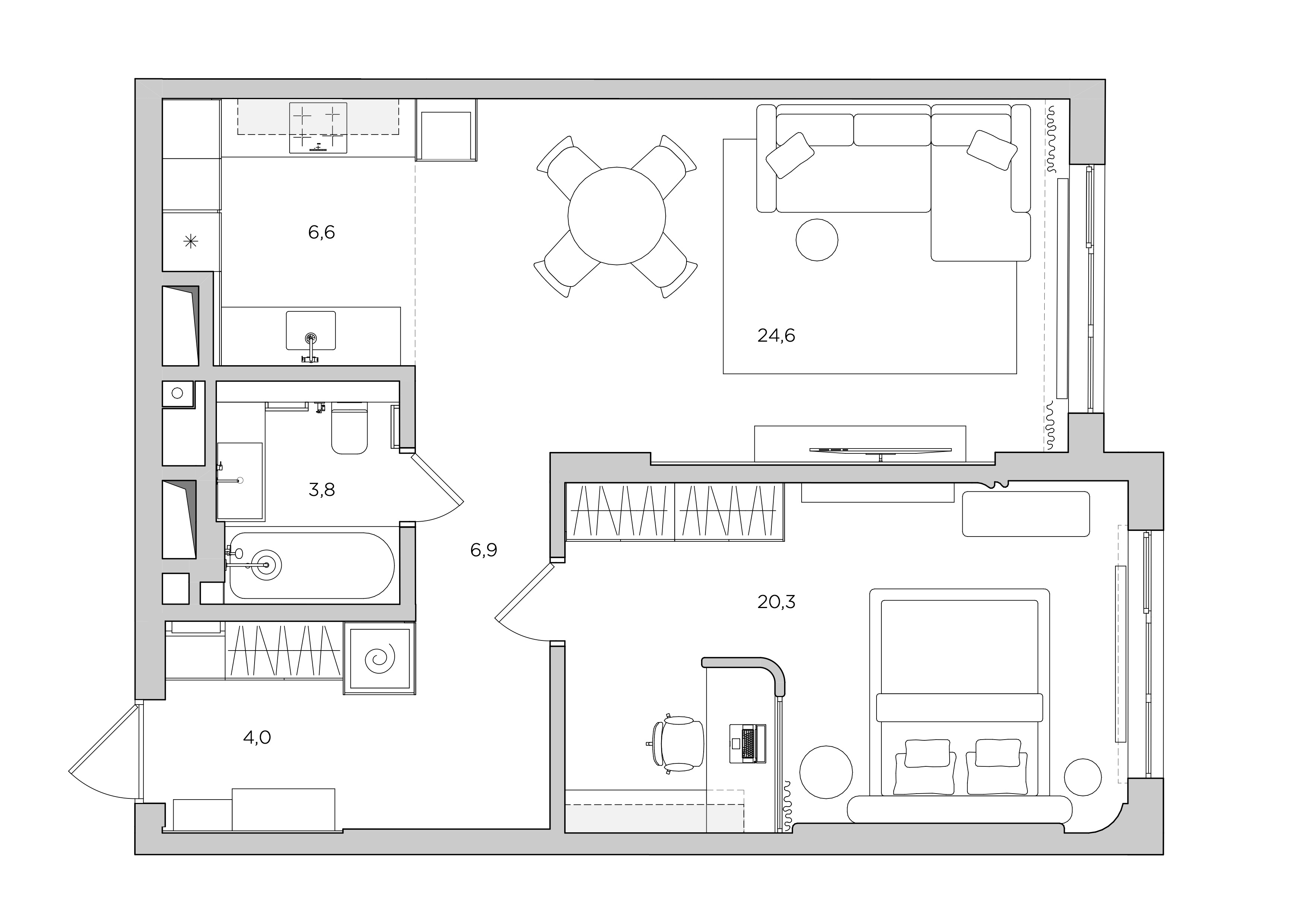
After
Narrow kitchen alcove
Load‑bearing beam under the ceiling in the hallway and bathroom
Load‑bearing pillars in the living room
An office created inside the bedroom
Partitions between the hallway and the kitchen‑living room removed
Kitchen cabinets placed on both sides of the alcove
Дизайн кухни-гостиной

Layouts where the kitchen area is noticeably narrower than the rest of the living room are quite common these days, and this apartment is no exception. Based on that configuration, we designed the kitchen to wrap around all three sides of the alcove. Facing the living room are clean, simple panels that hide the ventilation duct, as well as the cabinet fronts that conceal the refrigerator and shelves.

Дизайн кухни фото
Дизайн кухни в современном стиле

We made the lower cabinets symmetrical and minimalist: the countertop and low backsplash match the color of the cabinet fronts.

Дизайн кухни 2026
Дизайн кухни с холодильником

In this kitchen, we visually separated the countertop from the cabinets by extending the handle profile onto the end of the unit. This makes the quartz countertop look even thinner and lighter.

Интерьер кухни фото

Choosing a backsplash that is only 25 cm high instead of running it up the whole wall was a deliberate decision – it makes the kitchen feel more like a tidy chest of drawers, which fits this delicate interior perfectly.

Интерьер кухни-гостиной

Because the ventilation duct takes up part of the alcove, we placed the tall oven cabinet separately. Along its edge, we combined neutraltextured porcelain tile with honeywarm engineered oak flooring.

Дизайн столовой
Интерьер гостиной фото

We chose a minimalist dining table with a delicate marble pattern on top. To go with it, we picked a round lamp that directs light upward onto a white disk, filling the space with soft, reflected light.

Интерьер гостиной в современном стиле
Бежевый интерьер

In the living room, we installed a large sofa that folds out – in case the homeowner’s friends want to stay overnight. Opposite the sofa is a wallmounted cabinet with minimalist fronts.

ТВ зона в гостиной

To bring more texture and variety to the large wall surface behind the TV, we invited an artist. Together we chose a paint shade slightly darker than the wall, and the artist used a sprayer to create a gradient on the panel. The result is very subtle, barely noticeable, and extremely soft.

Проект вентиляции

A loadbearing beam starts under the ceiling to the right of the TV. The clients were actually worried about it when they were choosing the apartment – they asked us whether the beam would interfere with future remodeling or the ventilation system. After looking at the photos and the floor plan, we assured them it wouldn’t. To treat it in an unusual way, we added a small box that echoes both the pillar and the protruding kitchen alcove, giving the simple volume of the room a sense of rhythm.

Дизайн квартиры фото

That beam also influenced the placement of the ventilation grilles in the kitchenliving room. Normally, the air supply grille would be located above the entrance to the living room. Instead, it was moved closer to the TV, routed around the beam.

Дизайн ванной фото

In the bathroom, we introduced texture and color. For the walls, we used not only neutral Italon porcelain tile but also mosaics from the same series – they add a delicate relief to the space. The accessories are bright orange, bringing a playful lightness. We placed the washing machine in the hallway because we believe the bathroom should always be a place to relax, not a laundry room.

Современный дизайн ванной

The manifold assembly is in a niche to the right of the mirror. We camouflaged the access hatch by tiling it with the same mosaic, and then filled the perimeter gap with sealant so the seam doesn’t stand out. The mirror has softclose hinges: it opens to the left like a cabinet door, while the hatch opens to the right.

Прихожая фото дизайн
Мебель для прихожей

The washing machine cabinet is located in the hallway. It also contains a dryer and shelves for cleaning supplies.

Ремонт квартир под ключ

In the entryway, all the furniture is raised off the floor: even the large wardrobe hovers 25 cm above the ground. The robot vacuum’s base station will fit under the wardrobe, and the floating furniture throughout the apartment will make for easy, thorough cleaning.

Дизайн интерьера фото

When planning the bedroom, we chose to include an office rather than a walkin closet, because the future homeowner will have a small storage room on the same floor where she can keep offseason items. The office is softly integrated into the bedroom interior through several design moves.

Дизайн спальни фото

First, it is not separated by a door – that way, the small space of just over 3.5 m² doesn’t feel cramped. Second, between the bedroom and the office, there is a large, seamless glass partition that can be covered with a curtain when she wants to hide the work area. Third, the wall has a smooth curve where the partition attaches to it, echoing other rounded elements in the bedroom: the headboard, the lamp, the bedside table, the nightstand, and the curved details on the walls.

Дизайн спальни в современном стиле фото
Интерьер спальни фото

For this office, we designed and built the console table ourselves: it is 1.70 m long and 70 cm wide. It matches the wall color, and most importantly, it follows the curve of the partition.

Дизайн спальни 2026
Кабинет в спальне

When designing the office furniture, we planned a convenient spot for the printer: it sits on a pullout shelf behind the right front panel of the chest of drawers.

Спальня дизайн интерьера
Спальня дизайн интерьера
Дизайн интерьера Москва
Бежевая спальня

For the seating area in the bedroom, we chose only rounded accessories and furniture. The small table rhymes with the dining table in the living room, and the bright headboard adds another playful touch.

Светлая спальня
Интерьер светлой спальни
Современная спальня фото

For clothing storage, we designed and built a large wardrobe that matches the wall color, but we made the fronts dynamic: varying the thicknesses creates a rhythmic pattern. We placed a mirror directly on one of the door panels – a convenient solution for small spaces.

Дизайн интерьера фото
Ремонт под ключ Москва
Дизайн-проект кухни
Дизайн-проект гостиной
Заказать дизайн-проект
Проект гостиной
Дизайн проект кухни
Дизайн проект квартиры
Дизайн проект интерьера
Дизайн-проект фото
Дизайн-проект Москва
Интерьер в бежевых цветах
Интерьер ванной
Проект ванной
Проект прихожей
Интерьер проект

That is how we presented the interior during the design phase: every item and material had already been chosen. Meticulous attention to detail allowed us to deliver an interior that matches the renderings perfectly.

?autoplay=1" title="YouTube video player" frameborder="0" allow="accelerometer; autoplay; clipboard-write; encrypted-media; gyroscope; picture-in-picture" allowfullscreen>

We invite you to watch a review of this interior, showcasing many more of its unique details. The video is also available on YouTube.

Estimate
The estimate is valid as of April 2025. It does not constitute a public offer.
Design
$11,868
Interior design project
$129
x
66 m2
=
$8,514
Furniture design project
$129
x
26 l.m
=
$3,354
Finishing materials
$31,335
Finex engineering board
$124
x
58 m2
=
$7,192
Italon porcelain
$49
x
38 m2
=
$1,862
Italon mosaico strip
$19
x
110 pcs
=
$2,090
Orac molding
$185
x
2 pcs
=
$370
Gradient painting of TV panels
$962
x
1 pc
=
$962
Derufa wall paint
$232
x
4 pcs
=
$928
Derufa ceiling paint
$193
x
2 pcs
=
$386
Черновые материалы
$17,545
x
1 kit
=
$17,545
Doors
$4,345
Union door in the bathroom
$1,320
x
1 pc
=
$1,320
Union door in the bedroom
$1,630
x
1 pc
=
$1,630
Union glass partition
$1,395
x
1 pc
=
$1,395
Furniture
$66,710
Alexander Tischler front door panel
$968
x
1 pc
=
$968
Alexander Tischler mirror, panel, cabinet and console in the hallway
$2,519
x
1 kit
=
$2,519
Alexander Tischler wardrobe with a cabinet for a washing machine in the hallway
$5,314
x
1 kit
=
$5,314
Alexander Tischler kitchen with the countertop
$21,907
x
1 kit
=
$21,907
Alexander Tischler TV panel in the kitchen-living room
$1,853
x
1 pc
=
$1,853
Alexander Tischler TV stand in the kitchen-living room
$1,471
x
1 pc
=
$1,471
Alexander Tischler wardrobe in the bedroom
$4,524
x
1 pc
=
$4,524
Alexander Tischler console for decoration in the bedroom
$689
x
1 pc
=
$689
Alexander Tischler console desktop in the bedroom
$2,272
x
1 pc
=
$2,272
Alexander Tischler wall-mounted cabinet with hanging cabinet in the bedroom
$4,163
x
1 kit
=
$4,163
Alexander Tischler countertop with integrated sink in the bathroom
$994
x
1 kit
=
$994
Alexander Tischler under sink cabinet
$1,974
x
1 pc
=
$1,974
Alexander Tischler cabinet above the installation
$1,515
x
1 pc
=
$1,515
Alexander Tischler mirror in the bathroom
$502
x
1 pc
=
$502
Tok dining table
$1,905
x
1 pc
=
$1,905
Midj chair
$1,353
x
3 pcs
=
$4,059
Mononova sofa in the kitchen-living room
$5,403
x
1 pc
=
$5,403
Divan.ru banquette in the bedroom
$202
x
1 pc
=
$202
Ogogo bed
$2,114
x
1 pc
=
$2,114
Tamamm bedside table
$722
x
1 pc
=
$722
TOK bedside table
$954
x
1 pc
=
$954
Burokrat Armchair
$686
x
1 pc
=
$686
Electrical items
$12,692
Aromas del Campo wall lamp in the hallway
$274
x
2 pcs
=
$548
Stellanova double plaster spotlights
$56
x
19 pcs
=
$1,064
Osram LED lamp
$3
x
38 pcs
=
$114
Arlight small built-in track
$150
x
3 pcs
=
$450
Arlight large built-in track
$206
x
3 pcs
=
$618
Arlight linear luminaire
$90
x
7 pcs
=
$630
Arlight spot light
$87
x
10 pcs
=
$870
Maytoni lamp in the kitchen-living room
$397
x
1 pcs
=
$397
Maytoni wall lamp
$82
x
2 pcs
=
$164
Aromas del Campo lamp in the bedroom
$933
x
1 pc
=
$933
Maytoni wall lamp in the bathroom
$78
x
1 pc
=
$78
Crystal LED bathroom light
$3
x
1 pc
=
$3
Profile for corner illumination
$5
x
5 pcs
=
$25
Profile for overhead lighting
$7
x
4 pcs
=
$28
Profile diffuser
$5
x
18 pcs
=
$90
Arlight LED strip
$45
x
4 pcs
=
$180
Donel sockets and switches
$1,131
x
1 kit
=
$1,131
Черновые материалы
$5,369
x
1 kit
=
$5,369
Heating, ventilation, and air conditioning
$14,242
Radiator
$1,596
x
1 pc
=
$1,596
Radiator
$1,345
x
1 pc
=
$1,345
Kentatsu outdoor air conditioning unit
$1,205
x
1 pc
=
$1,205
Kentatsu air-conditioning unit
$596
x
1 pc
=
$596
Kentatsu air conditioning unit
$623
x
1 pc
=
$623
Draft materials
$8,877
x
1 kit
=
$8,877
Plumbing and accessories
$8,852
Omoikiri kitchen faucet
$600
x
1 pc
=
$600
Omoikiri sink in the kitchen
$447
x
1 pc
=
$447
Omoikiri dispenser in the kitchen
$66
x
1 pc
=
$66
Timo built-in sink mixer
$520
x
1 pc
=
$520
Timo shower unit
$613
x
1 kit
=
$613
Riho bathtub
$585
x
1 pc
=
$585
Timo sink faucet with hygienic shower
$304
x
1 kit
=
$304
Isvea toilet
$529
x
1 pc
=
$529
Tece wall-hung toilet system
$691
x
1 pc
=
$691
Timo toilet brush holder
$174
x
1 pc
=
$174
Timo soap dispenser
$166
x
1 pc
=
$166
Timo toothbrush holder
$123
x
1 pc
=
$123
Timo paper holder
$107
x
1 pc
=
$107
Swog shelf
$87
x
2 pcs
=
$174
Swog hanger
$157
x
3 pcs
=
$471
Черновые материалы
$3,282
x
1 kit
=
$3,282
Works
$44,493
Building and installation management
$52
x
66 m2
=
$3,432
Preparatory and rough finishing
$2,831
x
1 kit
=
$2,831
Installation of water supply, sewerage, heating, and power supply systems
$7,053
x
1 kit
=
$7,053
Pre-finishing
$13,776
x
1 kit
=
$13,776
Fine finishing
$6,090
x
1 kit
=
$6,090
Fine installation of water supply, sewerage, heating, and power supply systems
$2,328
x
1 kit
=
$2,328
Furniture installation
$6,939
x
1 kit
=
$6,939
Logistics costs
$2,044
x
1 kit
=
$2,044
Total
$194,537
Team
Karen Karapetian
Creative Director
Diana Besedina
Chief Designer
Iuliia Ubozhenko
Designer
Кonstantin Prokhorov
Engineer
Oleg Mokrushnikov
Engineer
Liubov Venertseva
Engineer
Ekaterina Demkina
Head of Purchasing
Pavel Prokhorov
Head of Finishing
Evgenii Bridnya
Installation Manager
Yuriy Belmesov
Photographer
Oxana Afanaseva
Stylist
Vera Minchenkova
Copywriting
A worry‑free finished interior
We handle the design and complete the renovation without taking our clients away from their work or daily lives. If you, too, want to effortlessly create the interior of your dreams, let’s work together! Leave a request, and we will calculate a preliminary cost for producing your interior.

Interior Production, From an Executed Contract to Moving In,
Takes From 12 Months

Creating the interior design project
Quarter 1
Creating furniture design project
Fixing the value
Quarter 2
Erection of partition walls
Installing the utility systems
Quarter 3
Ceilings installation
Decoration
Doors installation
Quarter 4
Furniture and appliances installation
Cleaning
Interior Production, From an Executed Contract to Moving In,
Takes From 12 Months
Design works
Quarter 1
Quarter 2
Quarter 3
Quarter 4
Measurements
Making a layout
Making a sketch plan
Making the final design concept
Making a sketch plan for furniture
Making the final design concept for furniture
Designing the air ventilation system
Designing the heating system
Designing the water delivery system
Designing the wastewater disposal system
Designing the power supply system
Developing the budget
Construction supervision
Finishing facilities
Dismantling of partition walls
Erection of partition walls
Priming
Plastering
Soundproofing
Calking
Glass-fiber mat sizing
Coloring
Attaching porcelain stoneware
Floor soundproofing and waterproofing
Floor levelling
Installing underfloor heating
Placing porcelain stoneware onto the floor
Floor priming
Placing veneer wood onto the floor
Placing wood block flooring
Placing cork compensators
Ceiling soundproofing
Installing plasterboard ceiling
Ceiling priming
Ceiling calking
Putting glass-fiber mats onto the ceiling
Ceiling coloring
Cleaning
Utility systems
Installing the water delivery system and the wastewater disposal system
Installing the heating system
Installing the electricity supply system
Installing the vacuum ventilation system
Installing air conditioners
Doors and windows
Windows installation
Doors installation
Furniture and appliances
Furniture production
Furniture installation
Appliances installation
We Are the Members of the Professional Communities of the USA and Russia
Problem-Free Renovation
You buy an interior as a ready product. The renovating process will not take you away from your family, business, or vacation. We are the ones who control the working process, deliveries, and quality of products.
Full Responsibility
We are in charge of the whole interior and solve all possible mistakes.
Fixed Price
We fix the price of the whole interior at the stage of the design project so it will not rise during realization.

Other interiors

All interiors