59 m2 One-Bedroom Apartment With Moscow City View: Photos, Videos, and Estimate of the Completed Interior

59 m<sup>2</sup> One-Bedroom Apartment With Moscow City View: Photos, Videos, and Interior Estimate

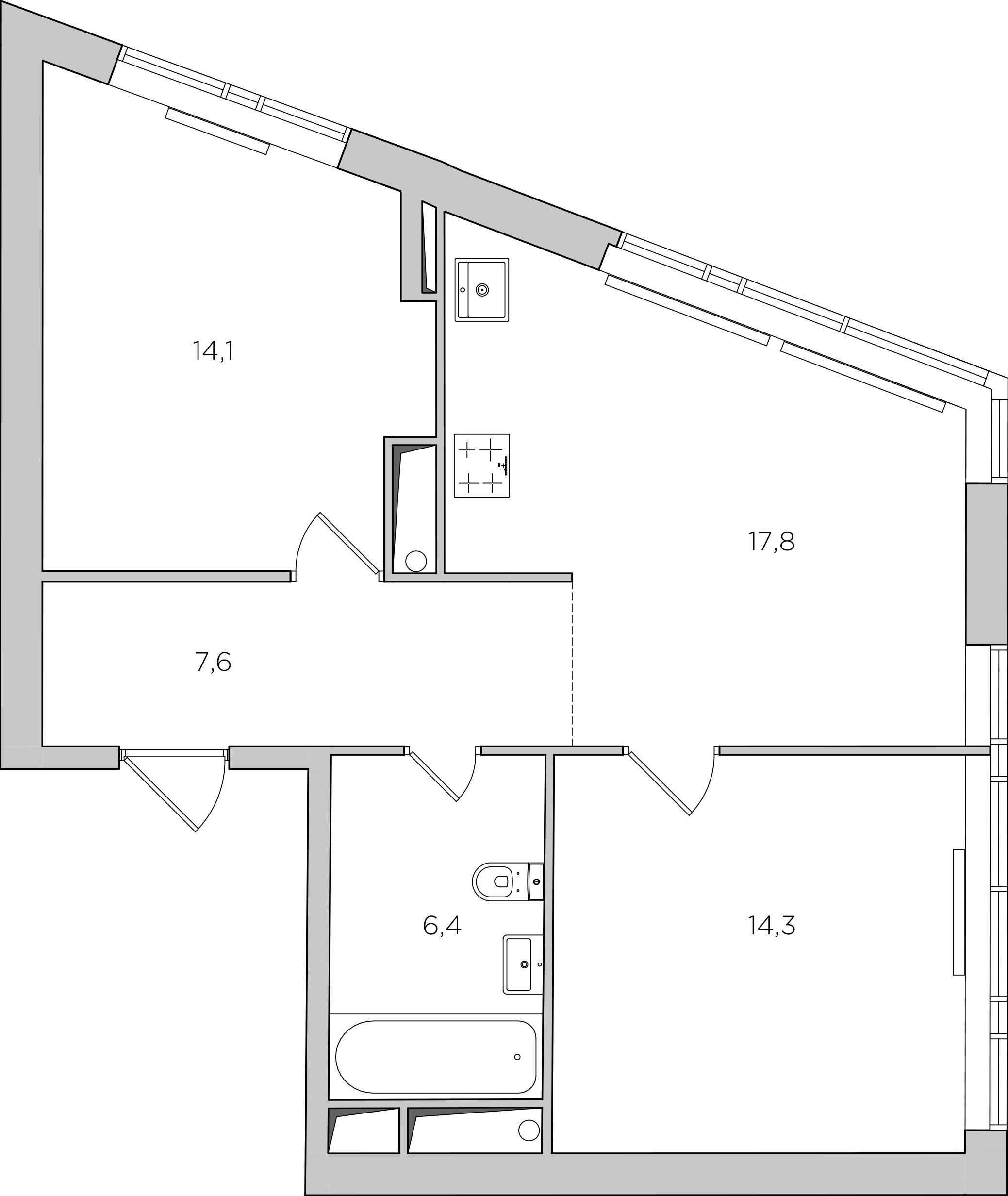
This is a unique high-floor apartment with acute angles and large windows. Our main task was to make it a place suitable for observing the city. Dealing with 70-degree angles is pretty difficult, but we managed to organize everything as ergonomically as possible: there is some storage space, a work desk and a lounge zone.

Windows cannot be opened, there are only small ventilators under the ceiling. We have developed a ventilation and air conditioning system so that the apartment always has fresh air.

Our team created a design project and worked with the interior exactly according to the planand budget. We also designed and manufactured all the cabinet furniture specifically for this apartment. We discussed this interior with MyDecor.

Size 59 m2
Type One-bedroom apartment
Years 2020–2022
Features The rooms are nonrectangular; windows cannot be opened, but there are some ventilators under the ceiling
Before
After
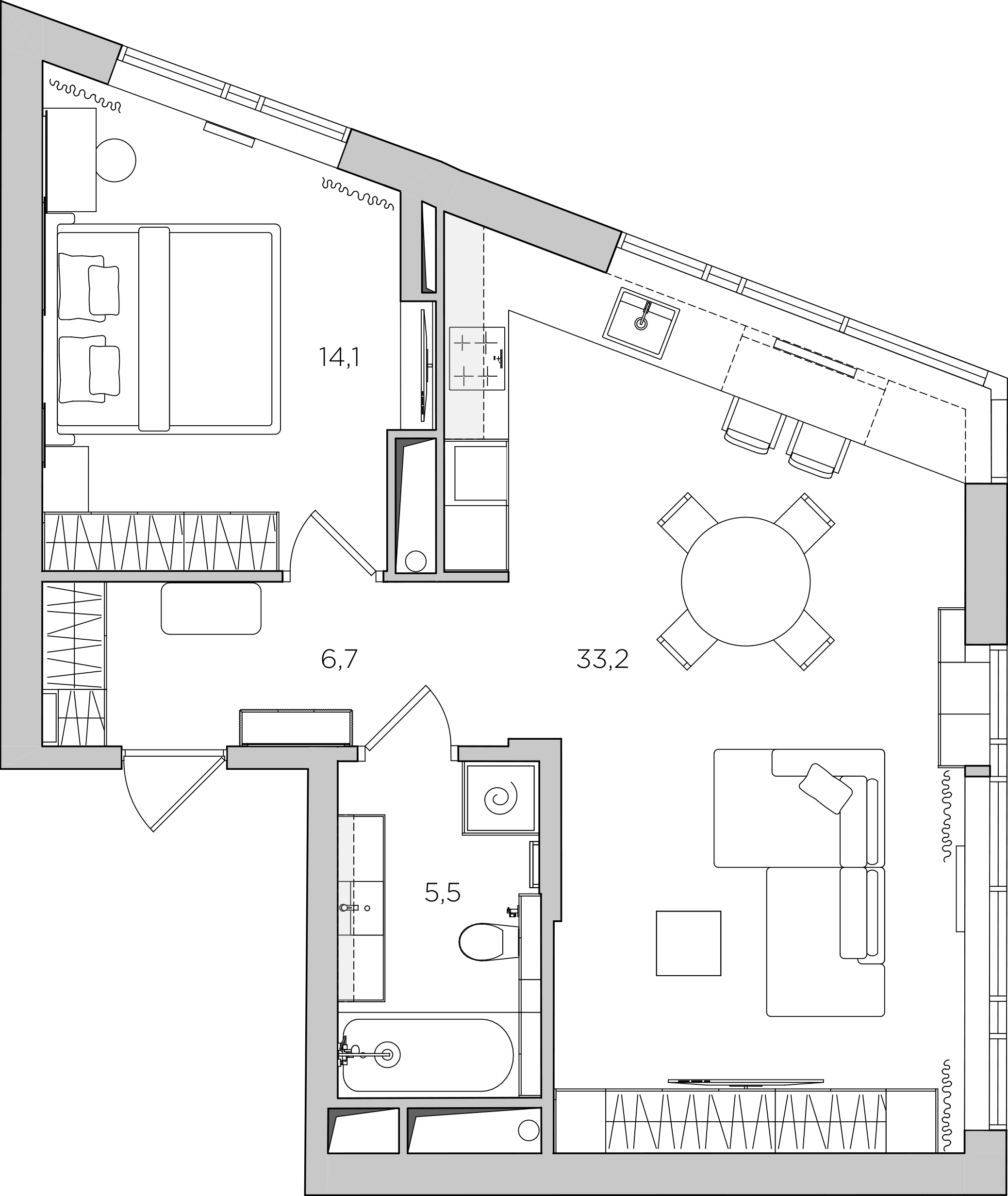
In nonrectangular rooms, the usable space is lessened. Non-straight angles make it more challenging to arrange the furniture
Large windows offer great city views
Thanks to the partition, the space is divided into a modest-sized kitchen and a living room
There is a TV and a drawer unit in the niche between the box and the pylon
We added a countertop along the window to give the clients a place to work and to have breakfast
The washing machine and dryer are hidden in a column cabinet so that the design of the bathroom remains solid
We decided to put the sofa in such a way that it would be convenient for those sitting on it both to watch TV and to communicate with people in the kitchen
The TV is placed directly on the false facade: with this solution, one can not waste space for storing clothes
Слэб кварцита Патагония с подсветкой
Слэб кварцита Патагония в кухне-гостиной

The center of the open-plan living room is a slab of Patagonia quartzite with translucent quartz layers with LED lights behind it. In the evening, the stone becomes an impressive lamp. The whole room is also designed in different shades of quartzite. We opted for bronze cabinet fronts, Atlas Concorde marble porcelain tiles, and a high-gloss white kitchen unit.

In the hallway, we lowered the ceiling by 40 cm to place a ventilation and air conditioning system; the air comes from the technical balcony. In the hallway, there is a mirror outerwear wardrobe. One can access hatches to the electrical and low-current shields through its rear wall.

Белая кухня с глянцевыми фасадами

The beautifully shining tip-on facades are made of refined glossy glass. The refrigerator is fitted out with a minimalistic handle.

Белая кухня со стеклянными фасадами

The client wanted to have a place by the window to watch the city view, and we shaped the kitchen according to this wish. The sink is located against the window, and the countertop turns into a work table and a place for breakfast.

In more detail, we showed the design of this kitchen in the video.

Глянцевая белая кухня
Шкаф с телевизором в гостиной
Шкаф со стеклянными фасадами в гостиной

One of the challenges regarding the open-plan living room was to hang the TV so that it could be seen from any angle. Along with this, we aimed at organizing as many storage spaces as possible. As a result, we hung the TV on the cabinet’s false facade. Behind the TV, there is a place for hanging off-season clothes.

Шкаф с телевизором и со стеклянными фасадами в гостиной

We talked about the interior of the cabinet in the video.

Шкаф для посуды со стеклянными фасадами
Шкаф для посуды и декора с подсветкой

Initially, the kitchen and living room were separate. We have combined these two rooms with a hallway so that the main room can be seen immediately after entering the apartment. The very tone of the apartment is set by a white table and chairs and a cupboard with frosted bronze glass fronts.

The cupboard hides a blank part of the glazing planned by the developer. Placing this piece of furniture at this spot adds some space to store the dishes and décor pieces.

We talked about this cabinet, which hides the blank part of the glazing, in the video.

Тумба с зеркалом в прихожей
Тумба в прихожей с рифлеными фасадами
Тумба и зеркало в прихожей
Шкаф для одежды в прихожей

We moved away from the classic design originally proposed by the client and opted out of the strict symmetry and wall decorations. Despite the asymmetry and even the “random” mirror fronts placement scheme, our design is consistent in terms of colors and textures. Each detail of the interior is reflected in the decorative elements and pieces of furniture located next to it.

In more detail, we discussed the special organization of the hallway in the video.

Косметический столик и бронзовые зеркала

The bedroom in this apartment is also nonrectangular. The complex angles of the bedroom are repeated in the false ceiling hiding LED lights and ventilation grills.

Косметический столик с ящиками в спальне
Прикроватная тумба бежевого цвета

The asymmetry of the room is supported by large mirrors above the headboard. Next to them, there is a hanging vanity table. Besides, the bedroom is equipped with brass lamps placed above the bedside stand.

Шкаф для одежды со стеклянными фасадами
Тумба под телевизор

In the bathroom decorated with marble and brass-painted aluminum mosaics, the main interior palette is repeated.

Тумба под раковину в ванной
Пенал для стиральной машины в ванной

In the bathroom, there is a column cabinet containing a washer and a dryer. The appliances are hidden behind the facades repeating the kitchen ones: their base is made of white enameled MDF covered with refined glossy glass.

Ванная комната с раковиной из искусственного камня
Зеркальный шкаф в ванной

It is also possible to store things in the unit under the sink, behind the mirror and above the toilet. The ribbed fronts remind of the hallway cabinets with each of them having handles made of textile loops. For this bathroom, we decided to use a curtain made of outdoor water-repellent fabric.

In more detail, we showed the bathroom and discussed all the design solutions in it on the video.

?autoplay=1" title="YouTube video player" frameborder="0" allow="accelerometer; autoplay; clipboard-write; encrypted-media; gyroscope; picture-in-picture" allowfullscreen>

We also shot a video review of this interior, where we talked in detail about all the planning and interior solutions. We published this video on YouTube as well.

Кухня-гостиная с диваном и шкафом для посуды
Кухня-гостиная с большими окнами
Кухня-гостиная с белой кухней и диваном
Современная белая кухня-гостиная
Современная кухня-гостиная
Белая кухня со стеклянными фасадами
Белая кухня с белой столешницей
Тумба и шкаф для одежды в прихожей
Тумба и зеркало в прихожей
Современная светлая спальня
Прикроватная тумба в спальне
Белый шкаф для одежды в спальне
Тумба под раковину со столешницей
Пенал для стиральной машины в ванной
Ванная комната с мебелью

This is how we presented the interior upon completion of the design: all objects and materials were chosen by our team. Elaborating all the details at the early stage allowed us to do everything according to the plan we presented to the client.

Estimate
The estimate is valid as of December 2020. It does not constitute a public offer.
Design
$12,642
The interior design project
$129
x
59 m2
=
$7,611
The furniture design project
$129
x
39 l. m
=
$5,031
Finishing materials
$33,519
Atlas Concorde porcelain stoneware
$80
x
117 м2
=
$9,360
Dune mosaic
$373
x
8 м2
=
$2,984
A slab of Patagonia quartzite
$7,817
x
1 pcs
=
$7,817
Derufa white wall paint
$115
x
2 pcs
=
$230
Derufa white ceiling paint
$101
x
2 pcs
=
$202
Shell construction materials
$12,926
x
1 pcs
=
$12,926
Doors
$5,367
Jaguar front door
$3,827
x
1 pcs
=
$3,827
Union interior door
$736
x
2 pcs
=
$1,472
Fantom magnetic doorstop
$34
x
2 pcs
=
$68
Furniture
$72,096
Alexander Tischler closet in the hallway
$3,071
x
1 pcs
=
$3,071
Alexander Tischler suspended table in the hallway
$1,122
x
1 pcs
=
$1,122
Alexander Tischler mirror in the hallway
$460
x
1 pcs
=
$460
Alexander Tischler kitchen with a countertop
$23,437
x
1 pcs
=
$23,437
Rimadesio dining table
$2,434
x
1 pcs
=
$2,434
Premier Group chair
$250
x
4 pcs
=
$1,000
Premiere Group barstool
$267
x
2 pcs
=
$534
Alexander Tischler bookshelf in the living room
$3,814
x
1 pcs
=
$3,814
One Mebel sofa
$3,071
x
1 pcs
=
$3,071
Alexander Tischler wardrobe in the living room
$7,835
x
1 pcs
=
$7,835
Alexander Tischler glass windowsill
$582
x
2 kits
=
$1,164
Alexander Tischler wardrobe in the bedroom
$5,275
x
1 pcs
=
$5,275
Alexander Tischler hanging table in the bedroom
$849
x
1 pcs
=
$849
One Mebel bed
$2,312
x
1 pcs
=
$2,312
One Mebel pouf
$238
x
1 pcs
=
$238
Alexander Tischler dressing table in the bedroom
$1,113
x
1 pcs
=
$1,113
Alexander Tischler mirror in the bedroom
$568
x
3 pcs
=
$1,704
Alexander Tischler TV cabinet in the bedroom
$2,322
x
1 pcs
=
$2,322
Alexander Tischler utility closet in the bathroom
$2,169
x
1 pcs
=
$2,169
Alexander Tischler cabinet above the wall-hung toilet system
$1,989
x
1 pcs
=
$1,989
Alexander Tischler cabinet with integrated sink
$4,001
x
1 pcs
=
$4,001
Alexander Tischler mirror cabinet in the bathroom
$2,182
x
1 pcs
=
$2,182
Electrical items
$6,487
FinnMat heating mat
$177
x
6 pcs
=
$1,062
Faldi magnetic integrated track
$62
x
5 pcs
=
$310
Faldi linear track lamp
$63
x
6 pcs
=
$378
Faldi cylindrical track lamp
$52
x
7 pcs
=
$364
Grock pendant lamp in the living room
$930
x
1 pcs
=
$930
Stellanova plaster lamp
$24
x
16 pcs
=
$384
Grock pendant lamp in the bedroom
$246
x
2 pcs
=
$492
Bend profile for the LED strip
$16
x
8 pcs
=
$128
Profile for LED lighting of a slab
$13
x
35 pcs
=
$455
Arlight LED strip
$8
x
30 pcs
=
$240
Arlight LED strip for a slab
$14
x
65 pcs
=
$910
Arlight LED strip for the furniture
$4
x
30 pcs
=
$120
Schneider Electric sockets and switches
$714
x
1 kit
=
$714
Ventilation and air-conditioning system
$7,823
Salda tidal installation
$762
x
1 pcs
=
$762
LG indoor air conditioning unit Type 1
$750
x
1 pcs
=
$750
LG indoor air conditioning unit Type 2
$633
x
1 pcs
=
$633
LG outdoor air conditioning unit
$1,945
x
1 pcs
=
$1,945
Consumable materials
$3,733
x
1 kit
=
$3,733
Sanitary ware
$5,091
Omoikiri dishwasher in the kitchen
$489
x
1 pcs
=
$489
Omoikiri faucet in the kitchen
$424
x
1 pcs
=
$424
Villeroy & Boch toilet
$466
x
1 pcs
=
$466
Tece wall-hung toilet system
$488
x
1 pcs
=
$488
Duravit bathtub
$949
x
1 pcs
=
$949
Metris bathtub faucet
$210
x
1 pcs
=
$210
Metris sink faucet
$110
x
1 pcs
=
$110
Terma heated towel rail
$424
x
1 pcs
=
$424
Crometta shower unit
$378
x
1 pcs
=
$378
Bossini hygienic shower
$484
x
1 pcs
=
$484
Royal Thermo radiator in the bedroom
$90
x
1 pcs
=
$90
Royal Thermo radiator in the living room
$150
x
2 pcs
=
$300
Neptun leakage control system
$279
x
1 kit
=
$279
Works
$45,914
Building and installation management
$69
x
59 m2
=
$4,071
Building and installation works
$26,140
x
1 pcs
=
$26,140
Logistics costs
$1,958
x
1 pcs
=
$1,958
Furniture installation
$9,222
x
1 pcs
=
$9,222
Manufacture and installation of a slab
$4,523
x
1 pcs
=
$4,523
Total
$188,939
Team
Karen Karapetian
Chief Designer
Iuliia Ubozhenko
Designer
Oleg Mokrushnikov
Engineer
Кonstantin Prokhorov
Engineer
Ekaterina Demkina
Head of Purchasing
Pavel Prokhorov
Finishing Manager
Alexey Stepanov
Installation Manager
Nastasya Korbut
Stylist
Yaroslav Lukiyanchenko
Photographer
Vera Minchenkova
Copywriting
Experience a ready-made interior without disrupting your work or family life
Our design project is prepared remotely, and our renovation process doesn’t require constant oversight from you. This was especially valuable for our recent project, where we updated the client with photos and videos every two weeks, allowing her to focus on her job and family. If you also want to achieve your dream interior with ease, let’s get started!

Interior Production, From an Executed Contract to Moving In,
Takes From 12 Months

Creating the interior design project
Quarter 1
Creating furniture design project
Fixing the value
Quarter 2
Erection of partition walls
Installing the utility systems
Quarter 3
Ceilings installation
Decoration
Doors installation
Quarter 4
Furniture and appliances installation
Cleaning
Interior Production, From an Executed Contract to Moving In,
Takes From 12 Months
Design works
Quarter 1
Quarter 2
Quarter 3
Quarter 4
Measurements
Making a layout
Making a sketch plan
Making the final design concept
Making a sketch plan for furniture
Making the final design concept for furniture
Designing the air ventilation system
Designing the heating system
Designing the water delivery system
Designing the wastewater disposal system
Designing the power supply system
Developing the budget
Construction supervision
Finishing facilities
Dismantling of partition walls
Erection of partition walls
Priming
Plastering
Soundproofing
Calking
Glass-fiber mat sizing
Coloring
Attaching porcelain stoneware
Floor soundproofing and waterproofing
Floor levelling
Installing underfloor heating
Placing porcelain stoneware onto the floor
Floor priming
Placing veneer wood onto the floor
Placing wood block flooring
Placing cork compensators
Ceiling soundproofing
Installing plasterboard ceiling
Ceiling priming
Ceiling calking
Putting glass-fiber mats onto the ceiling
Ceiling coloring
Cleaning
Utility systems
Installing the water delivery system and the wastewater disposal system
Installing the heating system
Installing the electricity supply system
Installing the vacuum ventilation system
Installing air conditioners
Doors and windows
Windows installation
Doors installation
Furniture and appliances
Furniture production
Furniture installation
Appliances installation
We Are the Members of the Professional Communities of the USA and Russia
Problem-Free Renovation
You buy an interior as a ready product. The renovating process will not take you away from your family, business, or vacation. We are the ones who control the working process, deliveries, and quality of products.
Full Responsibility
We are in charge of the whole interior and solve all possible mistakes.
Fixed Price
We fix the price of the whole interior at the stage of the design project so it will not rise during realization.

Other interiors

All interiors