A Bright 66 m2 Two-Bedroom Apartment for a Young Family With a Cat in Moscow: Photos, Videos, and Estimate of the Completed Interior

A Bright 66 m<sup>2</sup> Two-Bedroom Apartment for a Young Family With a Cat: Photos, Videos, and Interior Estimate

We designed the interior of this watercolor apartment for a young couple who are planning to have a child. The clients requested a brightly lit apartment with natural tones, a designated kid's room, and accommodations for their cat.

We completed a design project and executed the interior design accordingly. At the initial design phase, we provided a detailed estimate and locked in the implementation costs, which remained unchanged throughout the renovation process. Additionally, we custom-designed and built the cabinet furniture exclusively for this apartment.

Size 66 m2
Type A two-bedroom apartment
Years 2023–2024
Features Small kitchen-living room, large plumbing box in the hallway
Before
After
Long corridor leading to the bedroom
Small elongated kitchen-living room
A large ventilation duct
The master bedroom was relocated to the left side of the apartment, and a shower was added to it
The hallway wardrobes, cat complex, and kitchen cabinets were designed as a single unit
Part of the wall was shortened to ensure comfortable access to the kitchen-living area and to eliminate the corridor
A space for a baby crib was planned in the bedroom
Дизайн небольшой кухни-гостиной

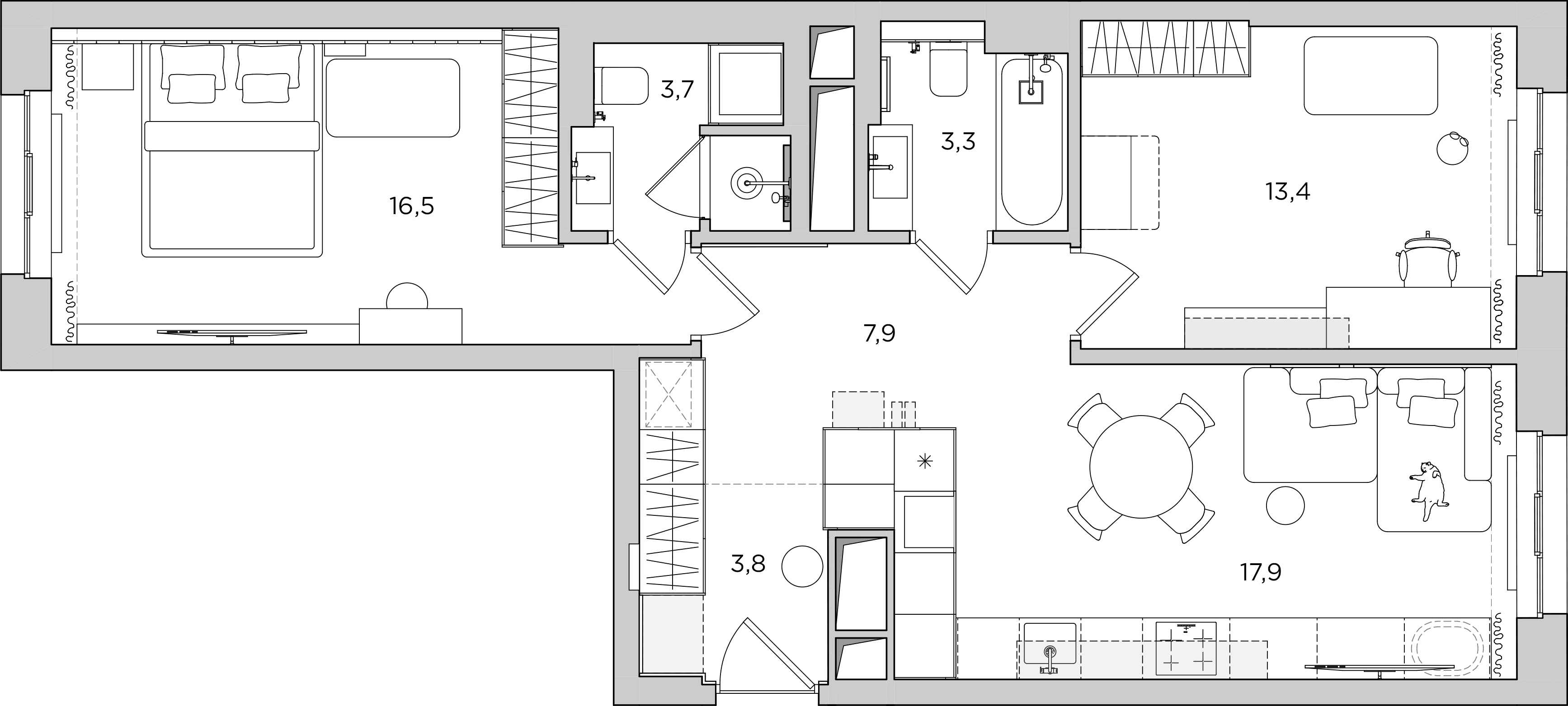
We slightly reworked the developer's layout: he placed the master bedroom in the room adjacent to the kitchen-living room which resulted in a long corridor. The small kitchen-living room was squeezed by walls. We moved the clients' bedroom to another room and positioned a kid's room next to the kitchen-living room. Additionally, we shortened the wall that separates the kitchen-living room and the children's room.

Мебель для кухни на заказ

By shortening the kitchen-living room wall, we combined kitchen cabinets and a cat complex in one block, maintaining a comfortable passage.

Комплекс для кота в квартире
Дизайн кухни-гостиной 18 квадратных метров
Мебель для гостиной на заказ

We found an unusual solution for a small kitchen-living room: we extended the lower kitchen modules to the window and repurposed them as a TV stand with a cat house. We added round holes in the façade, so the pet can relax comfortably next to the owners.

We expressed what we prepared for the cat in this interior and shared how he feels about it.

Кухонный гарнитур из МДФ на заказ

We opted not to install upper modules along the entire perimeter of the kitchen to maintain a spacious feel. The kitchen is quite narrow, and the upper modules would have overloaded the space.

Дизайн и ремонт небольшой гостиной

Despite the limited space in the kitchen-living room, we managed to fit a dining table for four people and a deep sofa. The wall behind the sofa is adorned with oak texture panels and lighting.

We demonstrated how the small kitchen-living room is organized.

Мебель для детской комнаты на заказ
Дизайн интерьера детской комнаты

We designed a large closet that extends up to the ceiling in the kids’ room. We selected multicolored ball-shaped handles for the closet, hung a bookcase near the desk, and installed a cabinet for toys.

Шкаф и кровать в детской комнаты
Оформление стен в детской комнате

We decorated the wall behind the crib with custom seamless wallpaper, and instead of a chandelier, we hung three balloon-like lamps. When the firstborn grows up, a crib can be easily replaced – there are more than two meters between the closet and the window.

Мебель для ванной комнаты на заказ
Дизайн интерьера небольшой ванной

We used two types of tiles in the guest bathroom: bright tiles with an oriental pattern and beige tiles with a sandstone texture. The bathroom interior is complemented with brass-trimmed accessories.

Мягкое изголовье для кровати
Мебель для спальни на заказ
Косметический столик и зеркало в спальне

The parents' bedroom was set up with enough space for a crib next to the parents' bed during the baby's first few months. As a result, there is no bedside table on the feature mom's side of the bed, only a small shelf.

Платяной шкаф в спальне
Дизайн интерьера ванной комнаты

We finished the headboard with soft panels, concealing the sockets and featuring installed lighting. Across from the bed, there is a vanity table with a drawer and a large mirror.

Мебель для ванной комнаты из ЛДСП
Дизайн и ремонт ванной комнаты с душем

We added a shower room to the parents' bedroom. It is decorated with glossy emerald tiles, which the clients loved. We placed light furniture and accessories against this backdrop. On the left side of the shower room, we positioned a tall cabinet for the washing machine and dryer.

Оформление душа

In this video, we show the bathroom and utility cabinet in detail.

Мебель для прихожей на заказ
Дизайн интерьера прихожей

We used the same tiles on the hallway floor as in the bathroom. We replaced the front door panel, so now it matches the wall around it. We designed and built a hanging cabinet with a shoe box and mounted a large mirror opposite it. We also installed hooks for bags on the door. The closets have rods and shelves for clothes and accessories, and the far right module has space for a Maine Coon litter box.

Столовая зона в квартире

We designed and implemented such a light summer interior for our clients. We are sure that they will feel comfortable in it even in the grey Moscow winters.

?autoplay=1" title="YouTube video player" frameborder="0" allow="accelerometer; autoplay; clipboard-write; encrypted-media; gyroscope; picture-in-picture" allowfullscreen>

You can take a look at this interior with us and see it as we presented in to the customers. We shot a detailed review where we discussed all the typical and atypical solutions for us, and also showed whether the Maine Coon liked his new interior. We also published this video on YouTube.

Дизайн-проект интерьера двухкомнатной квартиры
Дизайн-проект кухни-гостиной 18 квадратных метров
Мебель для кухни-гостиной, проект
Дизайн-проект ванной комнаты
Дизайн-проект детской комнаты
Мебель для детской комнаты
Дизайн-проект мастер-спальни
Современная мебель для спальни на заказ
Дизайн-проект душевой в современном стиле
Дизайн-проект небольшой ванной комнаты

This is how we presented the interior at the design stage: all objects and materials were carefully selected. Paying careful attention to detail allowed us to bring the interior to life as per the initial sketches.

Estimate
The estimate is valid as of September 2023. It does not constitute a public offer.
Design
$13,932
Interior design project
$129
x
66 m2
=
$8,514
Furniture design project
$129
x
42 l.m
=
$5,418
Finishing materials
$36,274
Lab Arte engineering board
$56
x
62 m2
=
$3,472
Harmony porcelain stoneware in the hallway and guest bathroom
$75
x
12 m2
=
$900
Porcelanosa ceramic tiles in the guest bathroom
$91
x
24 m2
=
$2,184
Porcelanosa porcelain stoneware in the bathroom
$83
x
5 m2
=
$415
Dual Gres ceramic tiles in the bathroom
$47
x
31 m2
=
$1,457
Peronda porcelain stoneware in the kitchen
$88
x
17 m2
=
$1,496
San Marco light beige paint
$195
x
3 pcs
=
$585
San Marco white paint
$184
x
2 pcs
=
$368
Creatville wallpaper
$32
x
10 m2
=
$320
Shell construction materials
$25,077
x
1 kit
=
$25,077
Doors
$5,584
Union flush mounting interior door
$815
x
4 pcs
=
$3,260
Colombo doorknob
$170
x
4 pcs
=
$680
Verum doorstop
$36
x
4 pcs
=
$144
Colombo doorstop in the hallway
$15
x
1 pc
=
$15
Alexander Tischler glass door in the bathroom
$1,485
x
1 pc.
=
$1,485
Furniture
$62,978
Alexander Tischler wall panels, console and wardrobe in the hallway
$5,444
x
1 kit
=
$5,444
Alexander Tischler mirror and cabinet in the hallway
$2,466
x
1 kit
=
$2,466
Alexander Tischler cat complex
$1,288
x
1 kit
=
$1,288
Alexander Tischler kitchen
$16,249
x
1 kit
=
$16,249
Alexander Tischler wall panels in the kitchen-living room
$1,025
x
1 kit
=
$1,025
Alexander Tischler wall panels in the corridor
$628
x
1 kit
=
$628
Alexander Tischler textile panels and bedside table in the bedroom
$2,878
x
1 kit
=
$2,878
Alexander Tischler bed frame
$545
x
1 pc
=
$545
Alexander Tischler wardrobe in the bedroom
$3,340
x
1 pc
=
$3,340
Alexander Tischler vanity desk and mirror in the bedroom
$3,472
x
1 kit
=
$3,472
Alexander Tischler wardrobe in the kid's room
$4,235
x
1 pc
=
$4,235
Alexander Tischler desktop, cabinets and shelves
$5,474
x
1 kit
=
$5,474
Alexander Tischler cabinet and mirror in the guest bathroom
$1,602
x
1 kit
=
$1,602
Alexander Tischler sink in the guest bathroom
$918
x
1 kit
=
$918
Alexander Tischler cabinet above the toilet in the guest bathroom
$985
x
1 pc
=
$985
Alexander Tischler utility cabinet in the bathroom
$1,833
x
1 pc
=
$1,833
Alexander Tischler cabinet above the toilet and wall panels in the bathroom
$1,536
x
1 kit
=
$1,536
Alexander Tischler cabinet and mirror in the bathroom
$2,834
x
1 kit
=
$2,834
Alexander Tischler sink in the bathroom
$844
x
1 pc
=
$844
Shoenbuch hook in the hallway
$79
x
1 pc
=
$79
Shoenbuch large hook in the hallway
$83
x
2 pcs
=
$166
Mononova pouf
$206
x
1 pc
=
$206
Orimek chair
$143
x
4 pcs
=
$572
Anni Haus dining table
$699
x
1 pc
=
$699
Mononova sofa
$2,280
x
1 pc
=
$2,280
La Forma coffee table
$209
x
1 pc
=
$209
Ellipse kid's bed
$402
x
1 pc
=
$402
Ellipse mattress and mattress topper
$97
x
1 kit
=
$97
Ellipse dresser
$464
x
1 pc
=
$464
Ellipse changing table and mattress
$85
x
1 kit
=
$85
Berkano kid's chair
$55
x
1 pc
=
$55
Anni Haus pouf in the bedroom
$68
x
1 pc
=
$68
Electrical items
$5,455
Maytoni spot
$44
x
3 pcs
=
$132
Arlight built-in lamp
$36
x
43 pcs
=
$1,548
Maytoni lamp above the dining table
$97
x
5 pcs
=
$485
Aromas del Campo sconce
$344
x
2 pcs
=
$688
Maytoni white lamp in the bedroom
$99
x
2 pcs
=
$198
Maytoni lamp in the bedroom
$97
x
1 pc
=
$97
Brokis green lamp in the kid's room
$474
x
1 pc
=
$474
Brokis white lamp in the kid's room
$437
x
1 pc
=
$437
Brokis beige lamp in the kid's room
$464
x
1 pc
=
$464
Leds С4 sconce in the kid's room
$150
x
1 pc
=
$150
Arlight sconce in the bathrooms
$70
x
2 pc
=
$140
The led strip corner profile
$4
x
7 pcs
=
$28
The led strip built-in profile
$5
x
2 pcs
=
$10
The led strip diffuser
$4
x
18 pcs
=
$72
Arlight led strip
$7
x
20 pcs
=
$140
Xiaomi thermostat
$40
x
4 pcs
=
$160
Schneider Electric sockets and switches
$232
x
1 kit
=
$232
Air-conditioning system
$4,878
Hisense air-conditioning system
$4,878
x
1 kit
=
$4,878
Sanitary ware
$7,476
Omoikiri sink in the kitchen
$330
x
1 pc
=
$330
Swedbe faucet in the kitchen
$312
x
1 pc
=
$312
Swedbe dispenser in the kitchen
$39
x
1 pc
=
$39
Omoikiri disposal button in the kitchen
$54
x
1 pc
=
$54
Aquafor water filter
$92
x
1 pc
=
$92
Roca bathtub
$403
x
1 pc.
=
$403
Timo shower unit in the guest bathroom
$620
x
1 pc
=
$620
Timo faucet in the guest bathroom
$278
x
1 pc
=
$278
Timo hygienic shower in the guest bathroom
$235
x
1 pc
=
$235
Timo towel holder in the guest bathroom
$144
x
2 pcs
=
$288
Timo small towel holder in the guest bathroom
$92
x
1 pc
=
$92
Timo toilet brush
$293
x
1 pc
=
$293
Timo dispenser in the guest bathroom
$163
x
1 pc
=
$163
Timo toilet roll holder
$144
x
1 pc
=
$144
MyOry shelf in the bathroom
$47
x
2 pcs
=
$94
Isvea toilet
$357
x
2 pcs
=
$714
Tece wall-hung toilet system
$526
x
2 pcs
=
$1,052
Timo shower unit in the bathroom
$545
x
1 pc
=
$545
Timo hygienic shower in the bathroom
$221
x
1 pc
=
$221
Timo faucet in the bathroom
$176
x
1 pc
=
$176
Santi Line siphon
$41
x
2 pcs
=
$82
Allen Brau pop-up waste
$31
x
2 pcs
=
$62
MyOry toilet brush holder in the bathroom
$72
x
1 pc
=
$72
MyOry shelf in the bathroom
$88
x
1 pc
=
$88
MyOry toilet roll holder
$52
x
1 pc
=
$52
MyOry hook in the bathroom
$34
x
4 pcs
=
$136
Tece floor drain
$839
x
1 pc
=
$839
Works
$42,761
Building and installation management
$52
x
66 m2
=
$3,432
Preparatory and rough finishing
$3,898
x
1 kit
=
$3,898
Installation of water supply, sewerage, heating, and power supply systems
$4,312
x
1 kit
=
$4,312
Pre-finishing
$9,995
x
1 kit
=
$9,995
Fine finishing
$7,366
x
1 kit
=
$7,366
Fine installation of water supply, sewerage, heating, and power supply systems
$2,714
x
1 kit
=
$2,714
Logistics costs
$2,275
x
1 kit
=
$2,275
Furniture installation
$8,769
x
1 kit
=
$8,769
Total
$179,338
Team
Karen Karapetian
Chief Designer
Iuliia Ubozhenko
Designer
Кonstantin Prokhorov
Engineer
Oleg Mokrushnikov
Engineer
Liubov Venertseva
Engineer
Ekaterina Demkina
Head of Purchasing
Karen Nikoian
Head of Finishing
Evgenii Bridnya
Installation Manager
Olga Karapetian
Photographer
Kira Prokhorova
Stylist
Vera Minchenkova
Copywriting
We will take your interior upon
The customers of this interior were only in the apartment a few times during the process. We supervised all the work ourselves and regularly sent the clients photos and videos of the progress. If you also want to implement your dream interior easily, let's work together! We will design the interior of your apartment or house and then renovate it with our trusted team. Renovating with us won't take you away from your family, work, or leisure time – we'll take care of everything. Just submit a request, and we will provide an estimate for designing your interior.

Interior Production, From an Executed Contract to Moving In,
Takes From 12 Months

Creating the interior design project
Quarter 1
Creating furniture design project
Fixing the value
Quarter 2
Erection of partition walls
Installing the utility systems
Quarter 3
Ceilings installation
Decoration
Doors installation
Quarter 4
Furniture and appliances installation
Cleaning
Interior Production, From an Executed Contract to Moving In,
Takes From 12 Months
Design works
Quarter 1
Quarter 2
Quarter 3
Quarter 4
Measurements
Making a layout
Making a sketch plan
Making the final design concept
Making a sketch plan for furniture
Making the final design concept for furniture
Designing the air ventilation system
Designing the heating system
Designing the water delivery system
Designing the wastewater disposal system
Designing the power supply system
Developing the budget
Construction supervision
Finishing facilities
Dismantling of partition walls
Erection of partition walls
Priming
Plastering
Soundproofing
Calking
Glass-fiber mat sizing
Coloring
Attaching porcelain stoneware
Floor soundproofing and waterproofing
Floor levelling
Installing underfloor heating
Placing porcelain stoneware onto the floor
Floor priming
Placing veneer wood onto the floor
Placing wood block flooring
Placing cork compensators
Ceiling soundproofing
Installing plasterboard ceiling
Ceiling priming
Ceiling calking
Putting glass-fiber mats onto the ceiling
Ceiling coloring
Cleaning
Utility systems
Installing the water delivery system and the wastewater disposal system
Installing the heating system
Installing the electricity supply system
Installing the vacuum ventilation system
Installing air conditioners
Doors and windows
Windows installation
Doors installation
Furniture and appliances
Furniture production
Furniture installation
Appliances installation
We Are the Members of the Professional Communities of the USA and Russia
Problem-Free Renovation
You buy an interior as a ready product. The renovating process will not take you away from your family, business, or vacation. We are the ones who control the working process, deliveries, and quality of products.
Full Responsibility
We are in charge of the whole interior and solve all possible mistakes.
Fixed Price
We fix the price of the whole interior at the stage of the design project so it will not rise during realization.

Other interiors

All interiors