Warm Minimalism in a 72 m2 Moscow Apartment with a Window in the Bathroom and a Walk-in Closet: Photos, Video, and Interior Estimate

Warm Minimalism in a 72 m<sup>2</sup>  Moscow Apartment with a Window in the Bathroom and a Walk-in Closet: Photos, Video, and Interior Estimate

The clients for this interior, a young couple, asked us to transform their apartment into a warm and calming space where they could rest and recharge. We designed a light-filled interior featuring coffee-colored furniture. The renovation made both the open-plan living room and the master bedroom feel more spacious and comfortable.

We handled both the design and renovation of this interior. We provided a detailed estimate and locked in the cost at the design stage, ensuring that the price remained unchanged throughout the entire renovation process.

Size 72 m2
Type A two-bedroom apartment
Years 2024–2025
Features No load-bearing walls; a small walk-in closet in the master bedroom; no receptacle for the external air conditioner unit; a window in the bathroom.
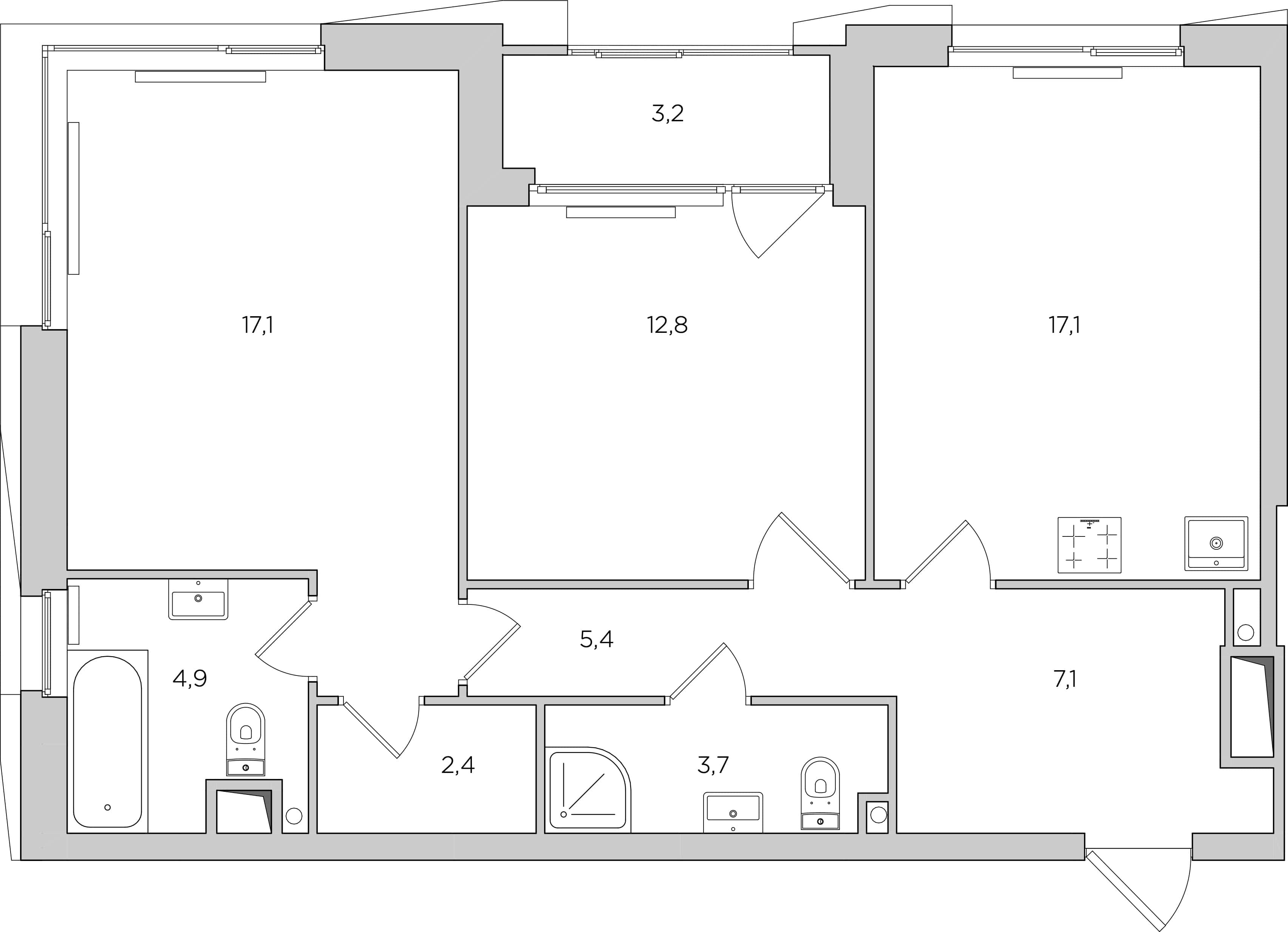
Before
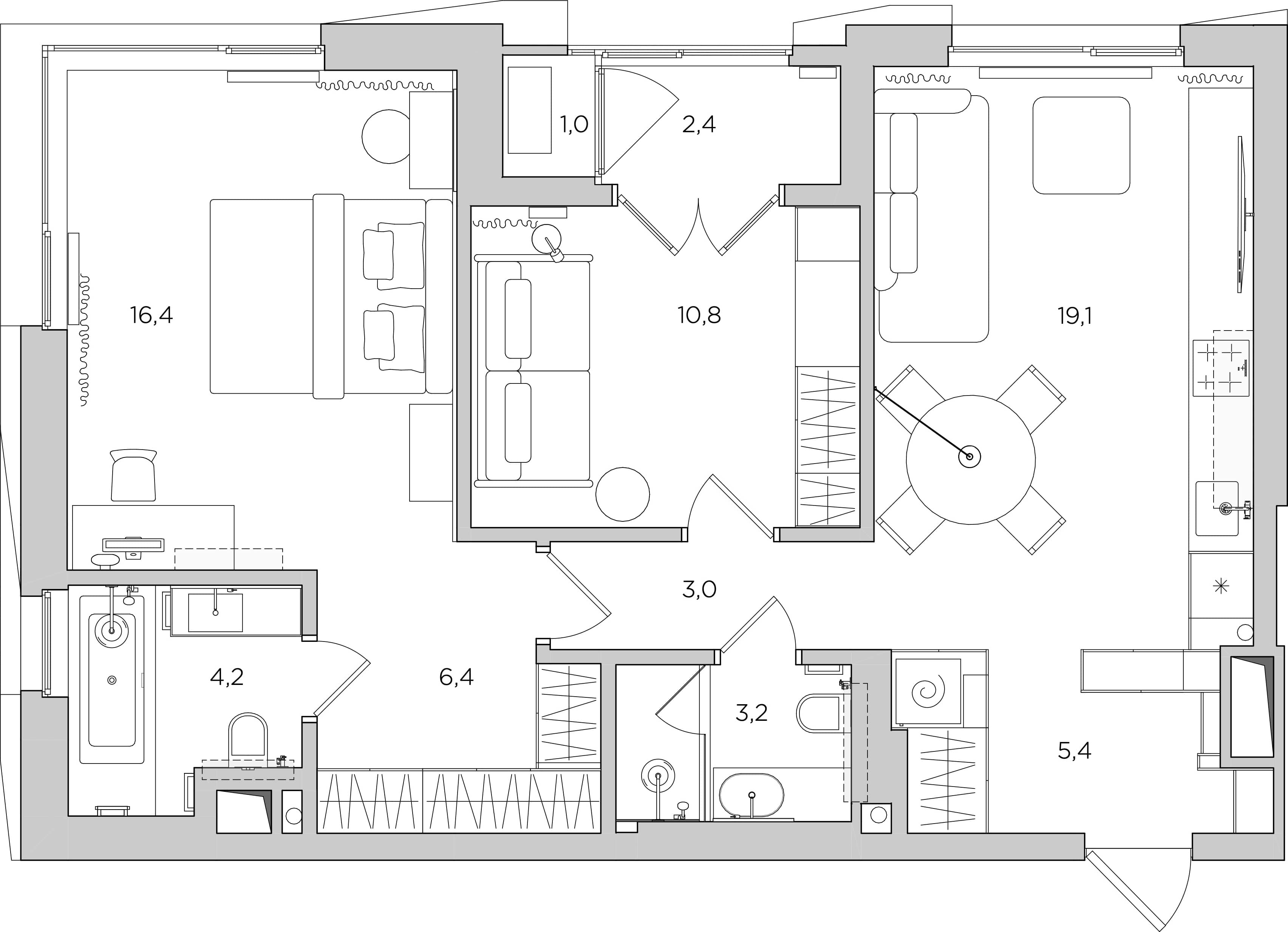
After
A small open-plan kitchen-living room
A tiny walk-in closet
A standard exit to the loggia with a window unit
Space for the external air conditioning unit was only available on the loggia
A narrow guest bathroom
Expanded the walk-in closet at the expense of the guest bathroom
Expanded the guest bathroom by repositioning the hallway
Removed the window sill and installed a full-height casement window
Set aside a utility block for ventilation equipment
Removed the partition between the open-plan living room and the hallway
Дизайн бежевой кухни-гостиной
Дизайн интерьера бежевой кухни-гостиной
Кухонный гарнитур из МДФ на заказ

We removed the partition between the entryway and the kitchen-living room, separating them only with a shallow cabinet. This made the living area feel much larger and allowed natural light from the window to flow into the entryway.

Дизайн бежевой кухни в шпоне дуба

For the kitchen, we crafted the tall cabinets and upper units from oak veneer, with a custom stain selected specifically for this interior. We also extended the lower units of the kitchen to reach the window, which allowed for a continuous countertop over four meters long.

Интерьер гостиной в стиле минимализм
Дизайн гостиной в стиле минимализм

To create a relaxation spot, we chose a sofa with an ottoman that can also serve as storage for small items and books. The contrasting dining table complements the black elements in the interior, while its upholstered base adds a soft, cozy touch. We hung a movable wall lamp between the table and the sofa.

Оформление кухни-гостиной в стиле минимализм
Дизайн квартиры в стиле минимализм с кухней-гостиной

In the hallway, we painted the large closet to match the wall color, creating a seamless look. One of the closet fronts is mirrored, and behind it are the washer and dryer. To the left, a shallow niche holds an ironing board.

Карен Карапетян отзывы
By the way,

If you're looking for a stunning design and top-quality renovation without getting into the details, please submit a request

Мебель для прихожей из МДФ

We enhanced the sense of space in the hallway by adding a second mirror, set flush between the wall panels to create a "portal-like" effect. We also raised the base of the beige cabinet off the floor to create a dedicated docking station for a robotic vacuum cleaner, allowing it to come and go without any obstacles.

Дизайн бежевой гостевой спальни
Мебель для детской комнаты на заказ

We slightly reduced the size of the guest bedroom — which could easily become a child's room in the future — to accommodate the expanded guest bathroom. The loggia is the only location the developer had planned for the external air conditioning unit.

Дизайн детской комнаты в современном стиле
Французское окно на лоджии

We realized that installing the external AC unit as the developer intended would have made the loggia unusable in the summer, as it would become too noisy and hot. Our solution, which required no changes to the building's facade, was to create a small, enclosed space on the loggia for both the external AC unit and the supply ventilation. We sealed it off with a sound-insulated door. We also removed the low window unit and installed a full-height casement window to let in even more natural light.

Дизайн ванной комнаты в современном стиле

We reduced the size of the children's room to make the guest bathroom wider. The developer's original layout was too narrow; by making the room more square, we were able to arrange the plumbing fixtures more comfortably. To the left, above the toilet, there's a cabinet that extends from the wall, providing deeper shelves. Directly opposite the entrance, we installed a wall-mounted vanity with an integrated sink, and to the right is the shower.

Дизайн интерьера главной спальни с гардеробной

The master bedroom is filled with light and air thanks to its large corner window. We enhanced this feeling with a "floating" bed featuring clear, recessed legs, and added a wall panel behind the headboard. The panel creates a low horizontal line that emphasizes the generous volume of space above.

Косметический столик в спальне на заказ

To the left of the bed, we placed a console vanity table matching the finish of the panels behind the bed. Above it, there is a round, backlit mirror.

Дизайн рабочего стола в спальне

Per the client’s request, we placed a minimalist dark desk with a subtle texture in the bedroom, adding a large bookshelf and a round sconce on the wall above.

Дизайн спальни с рабочим местом и гардеробной
Дизайн спальни с гардеробной в современном стиле
Дизайн гардеробной в шпоне дуба

We removed the partition between the walk-in closet and the bedroom and expanded the closet slightly by taking space from the guest bathroom. Here, we installed closets with a combination of shelves, drawers, and hanging rods. Mirrors were fitted onto two full-height, hinged doors.

Дизайн ванной с окном в стиле минимализм

The bathroom's focal point is the window overlooking the modern neighborhood. We chose light bamboo blinds because they are highly resistant to humidity.

Дизайн ванной комнаты в стиле минимализм
Мебель для ванной комнаты на заказ
Дизайн и ремонт ванной с окном
Оформление ванны керамогранитом фото

To create a seamless transition between the windowsill and the bathtub, we framed the bathtub with a border made from the same travertine-textured porcelain tile used on the walls. The entire frame was sloped to ensure water drains easily back into the tub.

Дизайн-проект бежевой кухни-гостиной
Дизайн-проект бежевой кухни
Дизайн-проект кухни-гостиной в стиле минимализм
Дизайн-проект прихожей в современном стиле
Дизайн-проект детской комнаты с французским окном
Дизайн-проект ванной комнаты с душем
Дизайн проект спальни в стиле минимализм
Дизайн-проект спальни с гардеробной
Дизайн-проект и ремонт ванной комнаты с окном
Дизайн-проект ванной с окном

At the design stage, we meticulously selected all objects and materials. Our attention to detail ensured the final interior closely matched our original sketches.

?autoplay=1" title="YouTube video player" frameborder="0" allow="accelerometer; autoplay; clipboard-write; encrypted-media; gyroscope; picture-in-picture" allowfullscreen>

You can join us in exploring this interior and experience it from the perspective of our clients. They did not participate in the construction process and only saw the apartment in its final form, just as we have showcased it in the video. In this video, we provide detailed explanations of our planning and interior design choices, which is also available on YouTube.

Estimate
The estimate is valid as of October 2024. It does not constitute a public offer.
Design
$12,384
Interior design project
$129
x
72 m2
=
$9,288
Furniture design project
$129
x
24 l. m
=
$3,096
Finishing materials
$30,777
Ariana Ceramica porcelain stoneware in the hallway and bathroom
$73
x
56 m2
=
$4,088
Esta parquet
$93
x
51 m2
=
$4,743
Italon porcelain stoneware in the children's room and loggia
$55
x
18 m2
=
$990
Peronda porcelain stoneware in the guest bathroom
$79
x
10 m2
=
$790
Peronda porcelain stoneware in the guest bathroom
$71
x
28 m2
=
$1,988
Peronda porcelain wavy stoneware in the guest bathroom
$74
x
5 m2
=
$370
Derufa beige wall paint
$187
x
4 pcs
=
$748
Derufa beige ceiling paint
$102
x
2 pcs
=
$204
Derufa white paint
$38
x
2 pcs
=
$76
Shell construction materials
$16,780
x
1 kit
=
$16,780
Doors and windows
$11,514
The window and partition on the loggia
$2,714
x
1 pc
=
$2,714
Balcony door
$2,380
x
1 pc
=
$2,380
Profildors flush mounting interior door in the guest bathroom
$1,099
x
1 pc
=
$1,099
Profildors flush mounting interior door in the guest bedroom
$1,104
x
1 pc
=
$1,104
Profildors flush mounting interior door in the bedroom
$1,072
x
1 pc
=
$1,072
Profildors flush mounting interior door in the bathroom
$1,050
x
1 pc
=
$1,050
Profildors doorknob
$57
x
4 pcs
=
$228
Profildors doorstop
$21
x
2 pcs
=
$42
Profildors magnetic doorstop
$38
x
2 pcs
=
$76
Painting the windows
$1,351
x
1 kit
=
$1,351
Front door panel
$333
x
1 pc
=
$333
Esta front door doorknob
$65
x
1 pc
=
$65
Furniture
$66,503
Alexander Tischler kitchen with the countertop
$16,271
x
1 kit
=
$16,271
Alexander Tischler cabinet and mirror in the hallway
$4,707
x
1 kit
=
$4,707
Alexander Tischler wardrobe in the hallway
$4,643
x
1 kit
=
$4,643
Alexander Tischler cabinet above the toilet in the guest bathroom
$443
x
1 kit
=
$443
Alexander Tischler under sink cabinet and a mirror in the guest bathroom
$1,280
x
1 kit
=
$1,280
Alexander Tischler countertop under the sink in the guest bathroom
$818
x
1 kit
=
$818
Alexander Tischler glass door in the guest bathroom
$1,855
x
1 kit
=
$1,855
Alexander Tischler wardrobe in the guest bedroom
$4,051
x
1 kit
=
$4,051
Alexander Tischler wall panel, vanity table, and mirror in the bedroom
$3,891
x
1 kit
=
$3,891
Alexander Tischler walk-in closet furniture
$10,046
x
1 kit
=
$10,046
Alexander Tischler cabinet above the toilet in the bathroom
$591
x
1 kit
=
$591
Alexander Tischler under sink cabinet with a mirror in the guest bathroom
$2,524
x
1 kit
=
$2,524
Alexander Tischler countertop under the sink in the bathroom
$2,096
x
1 kit
=
$2,096
Unika sofa
$2,654
x
1 pc
=
$2,654
Unika pouf
$1,143
x
1 pc
=
$1,143
Unika dining table
$1,739
x
1 pc
=
$1,739
Lulu Store chair
$434
x
4 pc
=
$1,736
Masterfabrik sofa in the guest bedroom
$945
x
1 pc
=
$945
Boca bed
$3,506
x
1 pc
=
$3,506
Lulu Store desktop
$1,164
x
1 pc
=
$1,164
Divan.ru pouf in the bedroom
$120
x
1 pc
=
$120
MyOry book shelf in the bedroom
$280
x
1 pc
=
$280
Electrical items
$9,658
Vibia wall lamp in the kitchen-living room
$1,506
x
1 pc
=
$1,506
LedsC4 sconce
$269
x
1 pc
=
$269
Maytoni lamp
$93
x
1 pc
=
$93
Maytoni lamp
$99
x
2 pcs
=
$198
Maytoni lamp in the children's room
$187
x
1 pc
=
$187
Maytoni built-in lamp
$11
x
57 pcs
=
$627
Maytoni led bulb
$5
x
57 pcs
=
$285
Schneider Electric sockets and switches
$553
x
1 kit
=
$553
Arlight led strip
$7
x
20 pcs
=
$140
Schneider Electric thermostat
$87
x
2 pcs
=
$174
Devi thermostat
$83
x
5 pcs
=
$415
Shell construction materials
$5,211
x
1 kit
=
$5,211
Heating, ventilation, and air conditioning
$12,166
Hisense air-conditioning system
$3,550
x
1 kit
=
$3,550
Colibri supply ventilation system
$4,218
x
1 kit
=
$4,218
Quadrum radiator in the kitchen-living room
$571
x
1 pc
=
$571
Quadrum radiator in the kid's room
$402
x
1 pc
=
$402
Quadrum radiator in the bedroom
$339
x
2 pcs
=
$678
Caldo radiator on the balcony
$302
x
1 pc
=
$302
The radiator connection kit
$90
x
4 pcs
=
$360
Secado radiator in the bathroom
$412
x
1 pc
=
$412
Shell construction materials
$1,673
x
1 kit
=
$1,673
Plumbing and accessories
$9,193
Omoikiri disposal button in the kitchen
$53
x
1 pc
=
$53
Omoikiri sink in the kitchen
$261
x
1 pc
=
$261
Omoikiri faucet in the kitchen
$511
x
1 pc
=
$511
Omoikiri dispenser in the kitchen
$64
x
1 pc
=
$64
MyOry shelf in the bathroom
$52
x
2 pcs
=
$104
Allen Brau floor drain
$236
x
1 pc
=
$236
MyOry towel holder in the guest bathroom
$86
x
4 pcs
=
$344
Iddis siphon
$63
x
2 pcs
=
$126
Ceramicanova built-in sink in the guest bathroom
$98
x
1 pc
=
$98
Ceramicanova sink bottom valve
$28
x
2 pcs
=
$56
Allen Brau shower unit
$267
x
2 pcs
=
$534
Bemeta towel holder in the bathroom
$42
x
1 pc
=
$42
Allen Brau sink faucet
$173
x
2 pcs
=
$346
Allen Brau faucet in the bathroom
$259
x
1 pc
=
$259
Excellent bathtub
$507
x
1 pc
=
$507
The bathtub installation kit
$244
x
1 kit
=
$244
Bemeta toilet brush
$68
x
2 pcs
=
$136
Allen Brau hygienic shower
$147
x
2 pcs
=
$294
Tece wall-hung toilet system
$459
x
2 pcs
=
$918
Allen Brau toilet
$289
x
2 pcs
=
$578
Shell construction materials
$3,482
x
1 kit
=
$3,482
Works
$60,905
Building and installation management
$52
x
72 m2
=
$3,744
Preparatory and rough finishing
$16,505
x
1 kit
=
$16,505
Installation of water supply, sewerage, heating, and power supply systems
$2,632
x
1 kit
=
$2,632
Pre-finishing
$16,394
x
1 kit
=
$16,394
Fine finishing
$8,763
x
1 kit
=
$8,763
Fine installation of water supply, sewerage, heating, and power supply systems
$3,150
x
1 kit
=
$3,150
Logistics costs
$2,598
x
1 kit
=
$2,598
Furniture installation
$7,119
x
1 kit
=
$7,119
Total
$213,100
Team
Karen Karapetian
Chief Designer
Anna Prokhorova
Designer
Кonstantin Prokhorov
Engineer
Oleg Mokrushnikov
Engineer
Liubov Venertseva
Engineer
Ekaterina Demkina
Head of Purchasing
Pavel Prokhorov
Head of Finishing
Evgenii Bridnya
Installation Manager
Olga Karapetian
Photographer
Nastasya Korbut
Stylist
Vera Minchenkova
Copywriting
Stress-Free Interior Completion
Our clients value our turnkey approach: we handle the entire renovation process by ourselves, meticulously executing the design project we've developed. If you're eager to design the interior of your dreams with ease, let's collaborate! Submit a request, and we'll provide you with an estimate for your interior project.

Interior Production, From an Executed Contract to Moving In,
Takes From 12 Months

Creating the interior design project
Quarter 1
Creating furniture design project
Fixing the value
Quarter 2
Erection of partition walls
Installing the utility systems
Quarter 3
Ceilings installation
Decoration
Doors installation
Quarter 4
Furniture and appliances installation
Cleaning
Interior Production, From an Executed Contract to Moving In,
Takes From 12 Months
Design works
Quarter 1
Quarter 2
Quarter 3
Quarter 4
Measurements
Making a layout
Making a sketch plan
Making the final design concept
Making a sketch plan for furniture
Making the final design concept for furniture
Designing the air ventilation system
Designing the heating system
Designing the water delivery system
Designing the wastewater disposal system
Designing the power supply system
Developing the budget
Construction supervision
Finishing facilities
Dismantling of partition walls
Erection of partition walls
Priming
Plastering
Soundproofing
Calking
Glass-fiber mat sizing
Coloring
Attaching porcelain stoneware
Floor soundproofing and waterproofing
Floor levelling
Installing underfloor heating
Placing porcelain stoneware onto the floor
Floor priming
Placing veneer wood onto the floor
Placing wood block flooring
Placing cork compensators
Ceiling soundproofing
Installing plasterboard ceiling
Ceiling priming
Ceiling calking
Putting glass-fiber mats onto the ceiling
Ceiling coloring
Cleaning
Utility systems
Installing the water delivery system and the wastewater disposal system
Installing the heating system
Installing the electricity supply system
Installing the vacuum ventilation system
Installing air conditioners
Doors and windows
Windows installation
Doors installation
Furniture and appliances
Furniture production
Furniture installation
Appliances installation
We Are the Members of the Professional Communities of the USA and Russia
Problem-Free Renovation
You buy an interior as a ready product. The renovating process will not take you away from your family, business, or vacation. We are the ones who control the working process, deliveries, and quality of products.
Full Responsibility
We are in charge of the whole interior and solve all possible mistakes.
Fixed Price
We fix the price of the whole interior at the stage of the design project so it will not rise during realization.

Other interiors

All interiors