113m2 Artistic Yekaterinburg Apartment for the Successful Lady: Photos, Video, and Interior Estimate

113m<sup>2</sup> Artistic Apartment for the Successful Lady: Photos, Video, and Interior Estimate

Our client, a successful businesswoman, dreamed of a home filled with iconic contemporary design. Her primary goal was to create a statement space for hosting family and friends. We delivered a vibrant, artfully curated interior, expanded the kitchen-living area, and devised an innovative solution for integrating a TV in the bedroom.

We handled the complete scope of work, from initial concept to final construction. We provided a fixed-price estimate at the project's outset, guaranteeing the agreed-upon budget remained intact throughout the entire renovation.

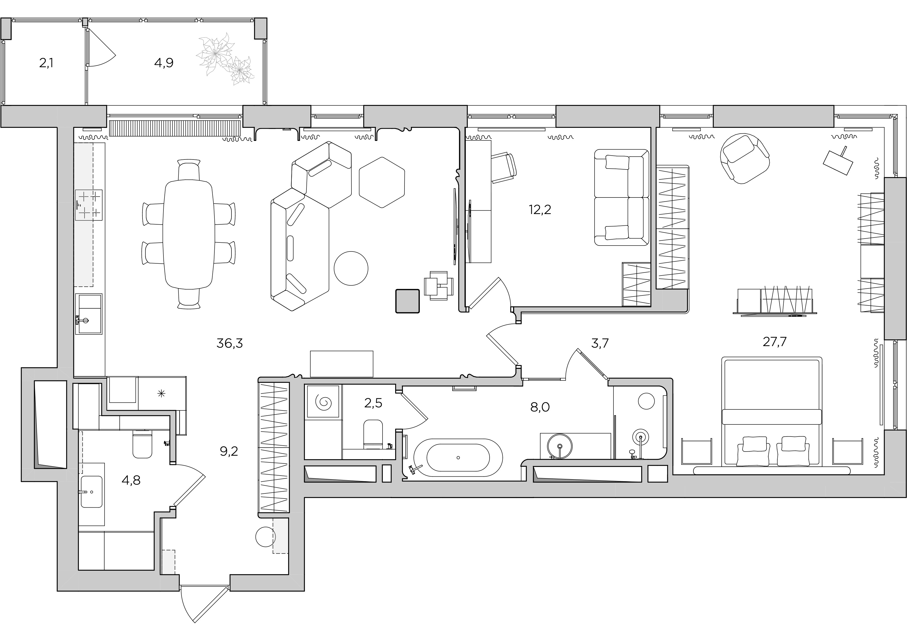
Size 113 m2
Type An one-bedroom apartment
Years 2023–2025
Features Two load-bearing columns, a spacious bedroom, an elongated master bathroom
Before
After
Spacious entrance hall
An elongated bathroom with access from the hallway
Spacious bedroom
We expanded the kitchen-living area
Created a separate toilet compartment within the main bathroom
Separated the walk-in closet only with a glass partition with a TV mounted on it
Made the entryway more compact while enlarging the guest bathroom
Дизайн интерьера кухни и столовой

The story of this interior began with a touch of whimsy: a dining table whose legs appeared clad in fine stockings. The moment the client and designer saw it in the showroom, they knew it was meant to be. To build a cohesive narrative, we paired it with chairs from the same visionary designer, Marcel Wanders, setting the tone for an interior rich in artistry and emotion.

Дизайн интерьера в стиле максимализм

To anchor the dining area, we introduced a dark crimson chest of drawers with a playful secret: its interior lining repeats the distinctive pattern found on the chairs. Adding to the magic, the central round compartment features a soft, integrated light. 

Оформление стен в гостиной
Дизайн гостиной с обоями

We curated the space with iconic pieces from renowned international designers and brands, then layered in soft curves and rich textures to add depth. This orchestration of forms and finishes creates an expansive feel in the living room, where the walls seem to part like curtains, revealing a picturesque Tuscan landscape — an effect achieved with fabric wallpapers from Arte.

Дизайн гостиной в стиле максимализм

Following the expansion of the kitchen-living area, a single structural column remained exposed. We anchored it with a robust wooden shelving system from the Italian brand Mogg, which provides both practical storage and visual strength.

Дизайн интерьера кухни-гостиной в большой квартире

Selecting the perfect sofa was a deliberate process, essential for amplifying the expressive and playful spirit of the Wanders’ collection. Our search culminated in the extraordinary Bonaldo sofa. Its unique, rounded form naturally encourages conversation; the embracing backrest gently curves around occupants, inviting them to face each other in relaxed dialogue.

Дизайн гостиной в ярких цветах

The sofa is paired with a stunning Glas Italia coffee table, its surfaces shimmering with a kaleidoscope of colors that cast luminous reflections around the room. This table’s singular design becomes a recurring motif, subtly echoed elsewhere in the home. Each element, chosen with theatrical flair, contributes to the narrative while maintaining a cohesive and balanced dialogue with the whole.

Карен Карапетян отзывы
By the way,

If you're looking for a stunning design and top-quality renovation without getting into the details, please submit a request

Дизайн яркой кухни
Большая угловая кухня на заказ

For the cabinetry, we selected a striking ash veneer, its stain meticulously chosen to harmonize with the overall design scheme. To amplify the space's playful character, we integrated bold color accents: the mustard-yellow handle profiles deliberately echo the living area sofa, while the raspberry-hued wall cabinet draws inspiration from the Tuscan landscape depicted on the adjacent wallpaper. We intentionally stopped this colorful cabinet short of the ceiling to achieve a lighter, more visually open composition. Despite its reduced height, it fully functions as a range hood, with a flat duct discreetly routed within the wall. All major appliances are seamlessly integrated into tall, uniform cabinets, including a built-in French-door refrigerator and a separate freezer unit.

Дизайн темной угловой кухни
Дизайн яркой кухни
Дизайн кухни в современном стиле

We introduced another vibrant accent to the kitchen-living room: a Tiffany-hued glass chandelier from Italian manufacturer Karman. Though a relatively young brand, its designers drew inspiration from retro lampshade silhouettes to create a chandelier with the poetic name Ceraunavolta ("Once Upon a Time").

Дизайн интерьера прихожей
Дизайн прихожей с зеркалом
Красивая мебель для прихожей на заказ

To ensure a seamless flow from the entryway into the open kitchen-living area, we extended the same porcelain tile and oak veneer from the kitchen. For function and flair, we installed a generous floor-to-ceiling mirror and vibrant accessories—including consoles and hooks—that pick up the key colors of the main living space. Discreet, practical storage is provided by a spacious cabinet, finished to blend seamlessly with the wall color, for coats and shoes.

Дизайн интерьера яркой ванной

After the renovation, the guest bathroom was enlarged, allowing us to incorporate a spacious cabinet for household items. We also introduced a first nod to the living room coffee table by selecting porcelain tiles with a similar holographic effect from 41zero42 for both bathrooms. A ribbed glass door now separates this bathroom from the hallway, a pattern we would repeat throughout the interior.

Дизайн интерьера детской комнаты
Дизайн интерьера спальни
Мебель для спальни на заказ
Рабочий стол в детской

We created a more subdued atmosphere in the guest bedroom, complementing the predominant beige with vibrant blue and red accents. The room is furnished with all the essentials for overnight guests, including a sofa bed, a tall wardrobe, and a desk.

Дизайн интерьера спальни в стиле максимализм

By relocating the bedroom door, we shortened the access corridor, which helped create a spacious private zone comprising a bathroom, a walk-in closet, and the bedroom itself. We designed the bedroom to be more tranquil than the kitchen-living room, while still incorporating theatrical touches.

Оформление стен в спальне
Дизайн интерьера спальни с гардеробной
Гипсовое панно в спальне
Освещение в спальне

With the help of a guest artist, we adorned the wall behind the headboard with a relief panel featuring abstract figures. Its monochrome palette makes it a fitting backdrop for the equally textured terracotta Flou bed headboard.

Дизайн интерьера спальни с гардеробной

To keep the bedroom feeling spacious, bright, and airy, we separated the walk-in closet only with a ribbed glass partition, leaving two passageways.

Современный шкаф для гардеробной

The walk-in closet consists of two distinct sections. One is an open system with playful, box-like shelves. The other is a spacious wardrobe in light ash veneer. This wardrobe is unique: we designed its fronts with varying thicknesses and oriented the veneer in different directions, giving the seemingly monolithic wall a more dynamic appearance. The design continues around a rounded corner into wall panels that echo the treatment used on the fronts.

Мебель для гардеробной на заказ
Дизайн современной гардеробной

We placed a full-length mirror and a Rimadesio armchair in the dressing area, transforming it into a chic boutique where one can happily spend time selecting and trying on outfits. We matched the closet's primary finish to the tone of the bedroom walls, creating a harmonious base. This is then punctuated by bold blue and orange cabinetry, hues intentionally chosen to resonate with other artistic statements throughout the apartment.

Дизайн интерьера спальни люкс
Дизайн интерьера открытой гардеробной в спальне

The bedroom and dressing area are connected not only by two passages but also by a large glass panel that offers a silhouetted view and soft reflections from the three windows.

Дизайн интерьера спальни с гардеробной

This very partition inspired us to implement a unique idea, one we hadn't seen before in Russia: mounting a TV directly onto the glass without brackets. To achieve this, with a client, we preselected a specific TV model that doesn't require outlets directly behind the screen—only a thin, translucent connecting cable.

Перегородка с телевизором в спальне
Дизайн интерьера открытой гардеробной в спальне

The cable is barely visible in the photos, as we pressed it flush against the joint between the glass panels. The mounting on the closet side is remarkably neat: just four small screws and a hole for the cable. Without a bracket, the screen sits perfectly flush against the glass. We covered this detail more thoroughly in our interior review video, linked at the end of this article.

Дизайн ванной комнаты в современном стиле

A partition of the same ribbed glass leads into the master bathroom, which is no less airy and artistic than the bedroom. We kept the bathroom within its original footprint but carved out a small zone for the toilet and a utility closet housing a washing machine.

Мебель для ванной на заказ

For the bathroom surfaces, we chose three types of green-blue porcelain stoneware: matte, glossy, and pearlescent. Their textures are especially pronounced in the daylight filtering through the ribbed glass.

Дизайн ванной комнаты с душем

We echoed the holographic pattern on the glass shower partition, where a smooth gradient stretches from purple to blue, creating an illusion of an enlarged reflection from the tiles.

Дизайн интерьера ванной в стиле максимализм

Flowing shapes feature here as well. The wall, starting at the door, curves left and sweeps into the shower like a ribbon, then dissolves smoothly to the right of the sink into a closed curtain. From there, the line of movement begins again from a sharp angle behind the floor-standing faucet.

Дизайн большой ванной комнаты
Дизайн ванной комнаты с санузлом

For this vibrant bathroom, we selected several distinctive accessories: bright pink faucets, colorful shelves, and a Kartell mirror with a green glass frame. Beside the bathtub, which appears to rise from the floor, we placed a table resembling a faceted gemstone, delicately refracting the light.

Дизайн кухни-гостиной в современном стиле и яркими цветами
Дизайн-проект интерьера со сметой
Проект кухни-гостиной с яркими цветами
Дизайн интерьера гостиной в современном стиле
Дизайн интерьера прихожей
Дизайн-проект ванной комнаты в Москве
Дизайн-проект спальни с гардеробной
Дизайн спальни с гардеробной с мебелью
Гардеробная по индивидуальным размерам в Москве
Дизайн интерьера мастер-спальни
Дизайн интерьера ванной комнаты в Москве
Дизайн интерьера ванной в Екатеринбурге
Дизайн интерьера детской комнаты

At the design stage, we meticulously selected all objects and materials. Our attention to detail ensured the final interior closely matched our original sketches.


?autoplay=1" title="YouTube video player" frameborder="0" allow="accelerometer; autoplay; clipboard-write; encrypted-media; gyroscope; picture-in-picture" allowfullscreen>

We invite you to watch a review of this interior, showcasing many more of its unique details. The video is also available on YouTube.

Estimate
The estimate is valid as of June 2024. It does not constitute a public offer.
Design
$19,608
Interior design project
$129
x
113 m2
=
$14,577
Furniture design project
$129
x
39 l.m
=
$5,031
Finishing materials
$67,146
Гипсовое панно в спальне
$7,508
x
1 kit
=
$7,508
41zero42 porcelain tile in the guest bathroom
$191
x
14 m2
=
$2,674
41zero42 porcelain tile in the bathroom
$191
x
39 m2
=
$7,449
Museum porcelain stoneware in the bathrooms
$81
x
12 m2
=
$972
41zero42 porcelain stoneware in the hallway, kitchen, loggia
$85
x
45 m2
=
$3,825
Arte wallpaper
$5,378
x
1 kit
=
$5,378
Orac Decor molding
$142
x
6 pcs
=
$852
Orac Decor cornice
$54
x
5 pcs
=
$270
Karelia flooring
$77
x
97 m2
=
$7,469
Derufa white paint
$202
x
4 pcs
=
$808
Derufa beige paint
$225
x
8 pcs
=
$1,800
Shell construction materials
$28,141
x
1 kit
=
$28,141
Doors
$20,137
Profildoors door in the guest bathroom
$2,052
x
1 pc
=
$2,052
Profildoors door in the guest bedroom
$2,346
x
1 pc
=
$2,346
Profildoors door in the bedroom
$2,308
x
1 pc
=
$2,308
Elitsteklo glass partition in the bedroom
$6,251
x
1 pc
=
$6,251
Elitsteklo glass partition in the bathroom
$962
x
1 pc
=
$962
Profildoors door in the bathroom
$3,886
x
1 pc
=
$3,886
Profildoors door in the toilet
$2,332
x
1 pc
=
$2,332
Furniture
$183,235
Alexander Tischler kitchen with the countertop
$26,231
x
1 kit
=
$26,231
Alexander Tischler wall panel in the living room
$389
x
1 kit
=
$389
Alexander Tischler wardrobe in the hallway
$9,426
x
1 pc
=
$9,426
Alexander Tischler mirror and shelf in the hallway
$1,756
x
1 kit
=
$1,756
Alexander Tischler front door panel
$997
x
1 pc
=
$997
Alexander Tischler cabinets in the guest bathroom
$8,199
x
1 kit
=
$8,199
Alexander Tischler under sink cabinet in the guest bathroom
$1,557
x
1 pc
=
$1,557
Alexander Tischler countertop under the sink in the guest bathroom
$532
x
1 pc
=
$532
Alexander Tischler table and cabinet in the guest bedroom
$2,482
x
1 kit
=
$2,482
Alexander Tischler wardrobe in the guest bathroom
$2,684
x
1 pc
=
$2,684
Alexander Tischler wall panels in the bedroom
$8,356
x
1 kit
=
$8,356
Alexander Tischler wardrobe in the bedroom
$13,714
x
1 pc
=
$13,714
Alexander Tischler walk-in closet furniture in the bedroom
$12,690
x
1 kit
=
$12,690
Alexander Tischler bedside table
$1,600
x
2 pcs
=
$3,200
Alexander Tischler under sink cabinet in the bathroom
$3,777
x
1 pc
=
$3,777
Alexander Tischler countertop under the sink in the bathroom
$1,140
x
1 pc
=
$1,140
Alexander Tischler cabinet in the toilet
$4,502
x
1 kit
=
$4,502
Flou bed
$12,043
x
1 pc
=
$12,043
La Redoute mirror in the dressing room
$352
x
1 pc
=
$352
Kartell table in the bathroom
$360
x
1 pc
=
$360
Schoenbuch mirror in the guest bathroom
$770
x
1 pc
=
$770
Kartell mirror in the bathroom
$750
x
1 pc
=
$750
Bonaldo sofa
$16,946
x
1 pc
=
$16,946
Bonaldo pouf
$2,315
x
1 pc
=
$2,315
Moooi pouf in the hallway
$466
x
1 pc
=
$466
Schoenbuch coat hanger in the hallway
$93
x
4 pcs
=
$372
Mogg shelving
$2,483
x
1 pc
=
$2,483
Glas Italia coffee table
$2,793
x
1 pc
=
$2,793
Ditre Italia sofa bed in the guest bedroom
$5,872
x
1 pc
=
$5,872
Rimadesio armchair in the dressing room
$6,718
x
1 pc
=
$6,718
Roche Bobois dining table
$9,590
x
1 pc
=
$9,590
Roche Bobois chair
$1,206
x
6 pcs
=
$7,236
Roche Bobois cabinet
$10,171
x
1 pc
=
$10,171
Moroso coffee table in the guest bedroom
$1,627
x
1 pc.
=
$1,627
Midj chair in the guest bathroom
$739
x
1 pc.
=
$739
Electrical items
$19,682
Stellanova build-in lamp
$51
x
56 pcs
=
$2,856
Osram bulb
$2
x
56 pcs
=
$112
Masiero lamp in the bedroom
$565
x
2 pcs
=
$1,130
Masiero lamp in the bedroom
$534
x
1 pc
=
$534
Karman lamp in the kitchen-living room
$7,896
x
1 pc
=
$7,896
Donolux rotating lamp in the kitchen-living room
$39
x
3 pcs
=
$117
Donolux lamp in the hallway
$30
x
1 pc
=
$30
Led strip profile
$9
x
2 pcs
=
$18
Led strip diffusor
$4
x
12 pcs
=
$48
Led strip
$8
x
12 pcs
=
$96
Donel sockets and switches
$1,588
x
1 kit
=
$1,588
Construction materials
$4,282
x
1 kit
=
$4,282
Marset floor lamp in the guest bedroom
$330
x
1 pc.
=
$330
Tom Dixon sconce in the walk-in closet
$645
x
1 pc.
=
$645
Heating and air conditioning
$8,558
Kentatsu outdoor air conditioning unit
$2,676
x
1 pc
=
$2,676
Kentatsu indoor air conditioning unit
$299
x
1 pc
=
$299
Kentatsu indoor air conditioning unit
$308
x
1 pc
=
$308
Kentatsu indoor air conditioning unit
$392
x
1 pc
=
$392
KZTO in-floor trench heater
$571
x
1 pc
=
$571
KZTO radiator
$533
x
1 pc
=
$533
Стальной трубчатый радиатор горизонтальный KZTO
$546
x
2 pcs
=
$1,092
KZTO tubular steel radiator in the master-bedroom
$602
x
1 pc
=
$602
KZTO tubular steel radiator in the walk-in closet
$383
x
2 pcs
=
$766
Connection kit for radiators and trench heater
$599
x
1 kit
=
$599
Construction materials
$720
x
1 kit
=
$720
Plumbing and accessories
$24,850
Paulmark sink in the kitchen
$599
x
1 pc
=
$599
Paulmark faucet in the kitchen
$239
x
1 pc
=
$239
Paulmark dispenser in the kitchen
$70
x
1 pc
=
$70
Salini sink in the bathroom
$601
x
1 pc
=
$601
Salini bathtub
$2,931
x
1 pc
=
$2,931
Isvea toilet in the bathroom
$483
x
1 pc
=
$483
Isvea toilet in the guest bathroom
$723
x
1 pc
=
$723
Giulini hygienic shower
$519
x
2 pcs
=
$1,038
Giulini sink faucet in the guest bathroom
$739
x
1 pc
=
$739
Giulini shower unit
$2,087
x
1 kit
=
$2,087
Giulini floor faucet
$5,389
x
1 pc
=
$5,389
Giulini sink faucet in the bathroom
$739
x
1 pc
=
$739
Swog hanger in the bathroom
$61
x
3 pcs
=
$183
Swog towel holder
$226
x
4 pcs
=
$904
Swog shelf in the bathroom
$243
x
2 pcs
=
$486
Swog small shelf in the bathroom
$218
x
3 pcs
=
$654
Swog shelf with the hangers in the bathroom
$234
x
1 pc
=
$234
Swog toilet roll holder in the toilet
$88
x
1 pc
=
$88
Swog toilet brush holder in the bathroom
$203
x
1 pc
=
$203
Isvea sink in the guest bathroom
$615
x
1 pc
=
$615
MyOry towel holder in the guest bathroom
$102
x
1 pc
=
$102
MyOry toilet roll holder in the guest bathroom
$63
x
1 pc
=
$63
MyOry toilet brush holder in the guest bathroom
$78
x
1 pc
=
$78
Tece wall-hung toilet system
$443
x
2 pcs
=
$886
Tece panel in the guest bathroom
$673
x
1 pc
=
$673
Tece panel in the bathroom
$597
x
1 pc
=
$597
Tece floor drain
$1,012
x
1 pc
=
$1,012
Construction materials
$2,434
x
1 kit
=
$2,434
 Works
$81,507
Building and installation management
$52
x
113 m2
=
$5,876
Preparatory and rough finishing
$6,042
x
1 kit
=
$6,042
Installation of water supply, sewerage, heating, and power supply systems
$8,463
x
1 kit
=
$8,463
Pre-finishing
$32,737
x
1 kit
=
$32,737
Fine finishing
$12,682
x
1 kit
=
$12,682
Fine installation of water supply, sewerage, heating, and power supply systems
$3,946
x
1 kit
=
$3,946
Logistics costs
$3,526
x
1 kit
=
$3,526
Furniture installation
$8,235
x
1 kit
=
$8,235
Total
$424,723
Team
Karen Karapetian
Chief Designer
Diana Besedina
Designer
Iuliia Ubozhenko
Designer
Кonstantin Prokhorov
Engineer
Oleg Mokrushnikov
Engineer
Liubov Venertseva
Engineer
Ekaterina Demkina
Head of Purchasing
Pavel Prokhorov
Head of Finishing
Evgenii Bridnya
Installation Manager
Elena Zhuravleva
Artist of the A la Prima workshop
Yuriy Belmesov
Photographer
Oxana Afanaseva
Stylist
Vera Minchenkova
Copywriting
Stress-Free Interior Completion
Our clients value our turnkey approach: we handle the entire renovation process by ourselves, meticulously executing the design project we've developed. If you're eager to design the interior of your dreams with ease, let's collaborate! Submit a request, and we'll provide you with an estimate for your interior project.

Interior Production, From an Executed Contract to Moving In,
Takes From 12 Months

Creating the interior design project
Quarter 1
Creating furniture design project
Fixing the value
Quarter 2
Erection of partition walls
Installing the utility systems
Quarter 3
Ceilings installation
Decoration
Doors installation
Quarter 4
Furniture and appliances installation
Cleaning
Interior Production, From an Executed Contract to Moving In,
Takes From 12 Months
Design works
Quarter 1
Quarter 2
Quarter 3
Quarter 4
Measurements
Making a layout
Making a sketch plan
Making the final design concept
Making a sketch plan for furniture
Making the final design concept for furniture
Designing the air ventilation system
Designing the heating system
Designing the water delivery system
Designing the wastewater disposal system
Designing the power supply system
Developing the budget
Construction supervision
Finishing facilities
Dismantling of partition walls
Erection of partition walls
Priming
Plastering
Soundproofing
Calking
Glass-fiber mat sizing
Coloring
Attaching porcelain stoneware
Floor soundproofing and waterproofing
Floor levelling
Installing underfloor heating
Placing porcelain stoneware onto the floor
Floor priming
Placing veneer wood onto the floor
Placing wood block flooring
Placing cork compensators
Ceiling soundproofing
Installing plasterboard ceiling
Ceiling priming
Ceiling calking
Putting glass-fiber mats onto the ceiling
Ceiling coloring
Cleaning
Utility systems
Installing the water delivery system and the wastewater disposal system
Installing the heating system
Installing the electricity supply system
Installing the vacuum ventilation system
Installing air conditioners
Doors and windows
Windows installation
Doors installation
Furniture and appliances
Furniture production
Furniture installation
Appliances installation
We Are the Members of the Professional Communities of the USA and Russia
Problem-Free Renovation
You buy an interior as a ready product. The renovating process will not take you away from your family, business, or vacation. We are the ones who control the working process, deliveries, and quality of products.
Full Responsibility
We are in charge of the whole interior and solve all possible mistakes.
Fixed Price
We fix the price of the whole interior at the stage of the design project so it will not rise during realization.

Other interiors

All interiors